Kaufpreis 798.800 €
Zimmer 6
Größe 146 m²
71116 Gärtringen
Objektdaten
Veröffentlicht am: 2. Februar 2026
Energieausweis: Liegt bei der Besichtigung vor
Danke! Bitte bestätige Deine E-Mail-Adresse – wir haben Dir soeben eine Mail geschickt.
Es gab ein Problem beim Absenden. Bitte versuche es erneut.
Bitte bestätige Deine E-Mail-Adresse, um Updates zu erhalten.
Objektbeschreibung
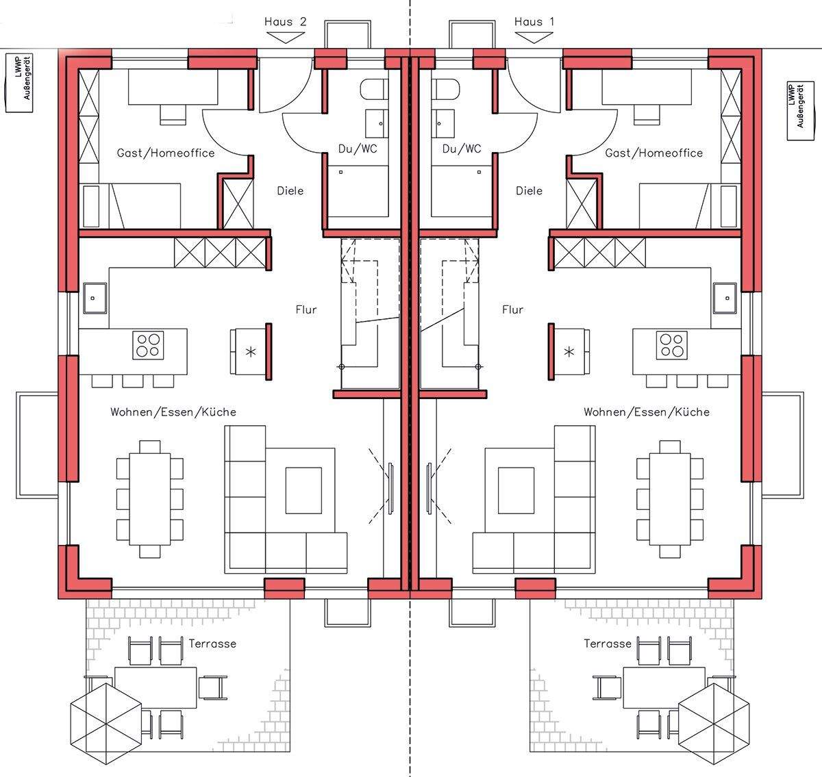
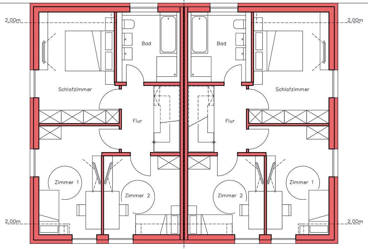
Diese hochwertige Doppelhaushälfte in Gärtringen überzeugt durch eine moderne Architektur, eine durchdachte Raumaufteilung und viel Platz für die ganze Familie. Haus 1:Im lichtdurchfluteten Erdgeschoss erwartet Sie ein offener Wohn-/Ess - und Küchenbereich und großzügige bodentiefe Verglasung, die den Blick in den Garten freigibt und für ein helles, freundliches Wohnambiente sorgt. Der direkte Zugang zur sonnigen Terrasse macht diesen Bereich zum Mittelpunkt des Familienlebens. Ergänzt wird das Erdgeschoss durch das Gäste-WC mit bodengleicher Dusche, sowie einem vielseitig nutzbaren Zimmer, ideal als Büro- oder Gästezimmer.Im Dachgeschoss befinden sich ein großes Elternschlafzimmer sowie zwei weitere Zimmer - perfekt als Kinder-, Arbeits- oder Gästezimmer. Das stilvolle Tageslichtbad mit Badewanne und Dusche bietet modernen Wohnkomfort für die ganze Familie.Im Untergeschoss profitieren Sie von viel Stauraum, einem separaten Kellerraum, einem Technik-/Waschraum und einem großen, bereits ausgebauten Hobbykeller, der flexibel nutzbar ist - ob als Fitnessraum, Atelier oder Spielbereich.Ein Stellplatz direkt am Haus bietet zusätzlichen Komfort. Zusätzlich ist ein großer Carport oder eine große Garage mit 3 m x 7 m möglich.Die Fußbodenheizung im ganzen Haus sorgt für ein angenehmes Wohnraumklima.
So funktioniert es
- Alle neuen Anzeigen matchen wir kostenlos mit Deinen Suchparametern.
- Passende Angebote senden wir Dir in einer E-Mail pro Tag.
- Du kannst auch verschiedene Suchen anlegen und Dich jederzeit abmelden. Mehr dazu
Wir haben soeben eine E-Mail mit Deinem Suchauftrag an Dich geschickt. – Klicke in dieser Mail auf den Bestätigungslink und schon geht's los. Prüfe ggf. auch Deinen Spamordner.
Es gab ein Problem beim Absenden Deiner E-Mail-Adresse. Bitte versuche es erneut.
WARNUNG: Bitte bestätige Deine E-Mail-Adresse, um regelmäßige Updates zu erhalten.