Objektdaten
Objektbeschreibung
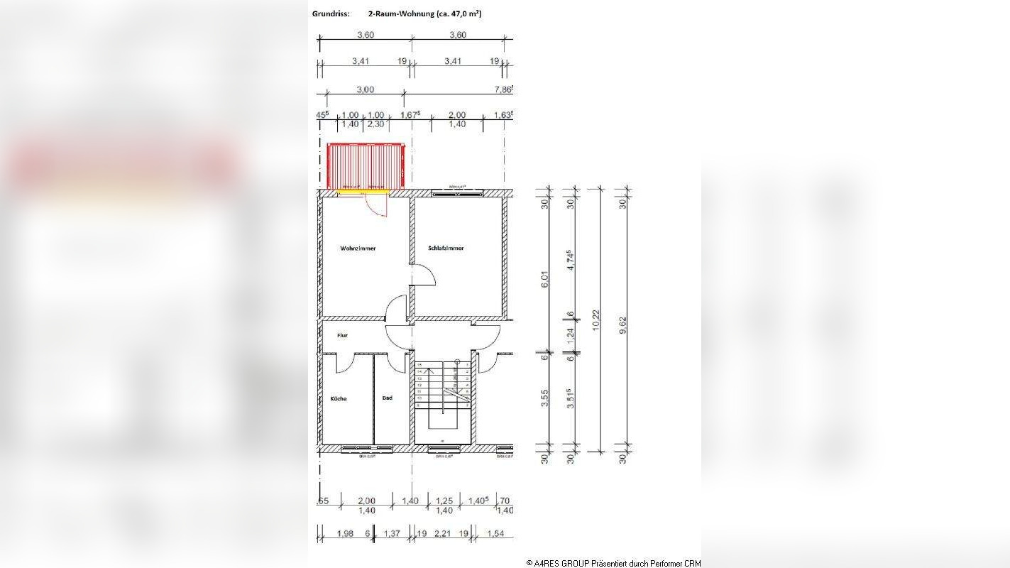
Kurzbeschreibung A4RES - Traumhafte 2-Zimmer-Oase mit Balkon & Stellplatz in idyllischem Riemserort! Objekt Die helle 2-Raumwohnung mit einer Wohnfläche von ca. 47 m² befindet sich im Dachgeschoss eines gepflegten Mehrfamilienhauses in Greifswald, Ortsteil Riems. Ein PKW-Stellplatz direkt vor dem Haus gehört zur Wohnung und sorgt für zusätzlichen Komfort.Hinweise zum Mietvertrag_ _ _ _ _ _ _ _ _ _ _ _ _ _ _ _ _ _ _ _ _ _Der Mietvertrag wird mit einer festen Laufzeit von zwei Jahren abgeschlossen. Es handelt sich um einen Staffelmietvertrag, bei dem die Miete insgesamt drei Mal im Abstand von jeweils zwei Jahren angepasst wird. Die jeweiligen Staffelungen sind verbindlich im Mietvertrag festgehalten.Angaben zum Energieausweis_ _ _ _ _ _ _ _ _ _ _ _ _ _ _ _ _ _ _ _ _ _Energieausweis: VerbrauchsausweisGültig bis: 09.11.2029Endenergieverbrauch: 105,3 kWh/(m²·a)Warmwasser: enthaltenÄhnliche Angebote
So funktioniert es
- Alle neuen Anzeigen matchen wir kostenlos mit Deinen Suchparametern.
- Passende Angebote senden wir Dir in einer E-Mail pro Tag.
- Du kannst auch verschiedene Suchen anlegen und Dich jederzeit abmelden. Mehr dazu





