Objektdaten
Objektbeschreibung
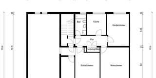
Die großzügige 3‑Zimmer‑Wohnung befindet sich in einem historischen Altbau an zentraler, aber trotzdem ruhiger Lage und empfängt Sie mit einem stilvollen Flur aus originalem Terrazzo, während alle weiteren Räume mit modernen hellgrauen 60×60‑cm‑Fliesen ausgestattet sind. Das große Tageslichtbad bietet viel Platz und Komfort. Vom Schlafzimmer aus gelangt man direkt in eine begehbare Ankleide, die zusätzlichen Stauraum und ein besonderes Wohngefühl schafft. Die Küche ist über einen Durchgang mit dem Wohnzimmer verbunden und verfügt über einen großen angrenzenden Vorratsraum. Eine große Terrasse steht den Bewohnern des Hauses gemeinschaftlich zur Verfügung. Bitte stellen Sie sich kurz vor (Personenzahl, Beruf, gewünschter Einzugstermin). Besichtigungen sind nach Vereinbarung möglich.So funktioniert es
- Alle neuen Anzeigen matchen wir kostenlos mit Deinen Suchparametern.
- Passende Angebote senden wir Dir in einer E-Mail pro Tag.
- Du kannst auch verschiedene Suchen anlegen und Dich jederzeit abmelden. Mehr dazu



