Kaufpreis 695.000 €
24534 Neumünster
Objektdaten
Veröffentlicht am: 12. Februar 2026
Danke! Bitte bestätige Deine E-Mail-Adresse – wir haben Dir soeben eine Mail geschickt.
Es gab ein Problem beim Absenden. Bitte versuche es erneut.
Bitte bestätige Deine E-Mail-Adresse, um Updates zu erhalten.
Objektbeschreibung
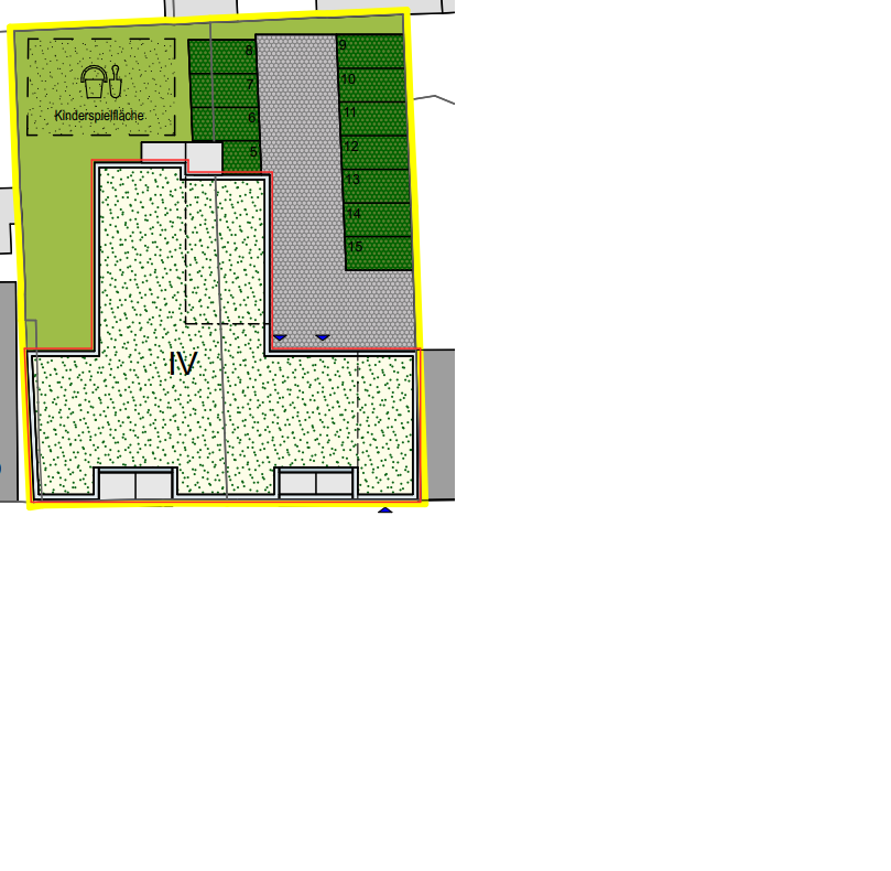
Das Wohnhaus Neubauprojekt umfasst 23 Wohneinheiten, jeweils 2-4 Zimmerwohnungen. Auf dem 1.020,00 m² großen Grundstück, es ist vollständig Projektiert und Baugenehmigt und bereit zum Umsetzen.- 23 Zimmerwohnungen und ca. 1.493 m² Wohnfläche- 1 Treppenhaus - 1 Aufzug- 15 Außenstellplätze für PKW- mit Unterkellerung, wirtschaftlich effiziente Planung- Photovoltaikanlage gemäß behördlicher Auflage- Enorme Nachfrage und 100% Vermietbar- Keine vergleichbares Projekt in Neumünster Innenstadt- Attraktive Lage, barrierefreie AuslegungFür die Wohnfläche wird ein Mietpreis von 15,80 €/m² kalt monatlich Kalkuliert.Daraus ergibt sich eine jährliche Kaltmiete für die 23 Wohneinheiten in Höhe von ca. 283.072,80 €.Zusätzlich werden 15 PKW - Aussenstellplätze mit jeweils 70,00 €/monatlich kalkuliert. Daraus ergibt sich eine jährliche Stellplatzmiete in Höhe von ca. 12.600 €.Soll Nettorendite in % : 4,35Soll Mieteinnahmen pro Jahr: 295.672,80 €
So funktioniert es
- Alle neuen Anzeigen matchen wir kostenlos mit Deinen Suchparametern.
- Passende Angebote senden wir Dir in einer E-Mail pro Tag.
- Du kannst auch verschiedene Suchen anlegen und Dich jederzeit abmelden. Mehr dazu
Wir haben soeben eine E-Mail mit Deinem Suchauftrag an Dich geschickt. – Klicke in dieser Mail auf den Bestätigungslink und schon geht's los. Prüfe ggf. auch Deinen Spamordner.
Es gab ein Problem beim Absenden Deiner E-Mail-Adresse. Bitte versuche es erneut.
WARNUNG: Bitte bestätige Deine E-Mail-Adresse, um regelmäßige Updates zu erhalten.