Objektdaten
Objektbeschreibung
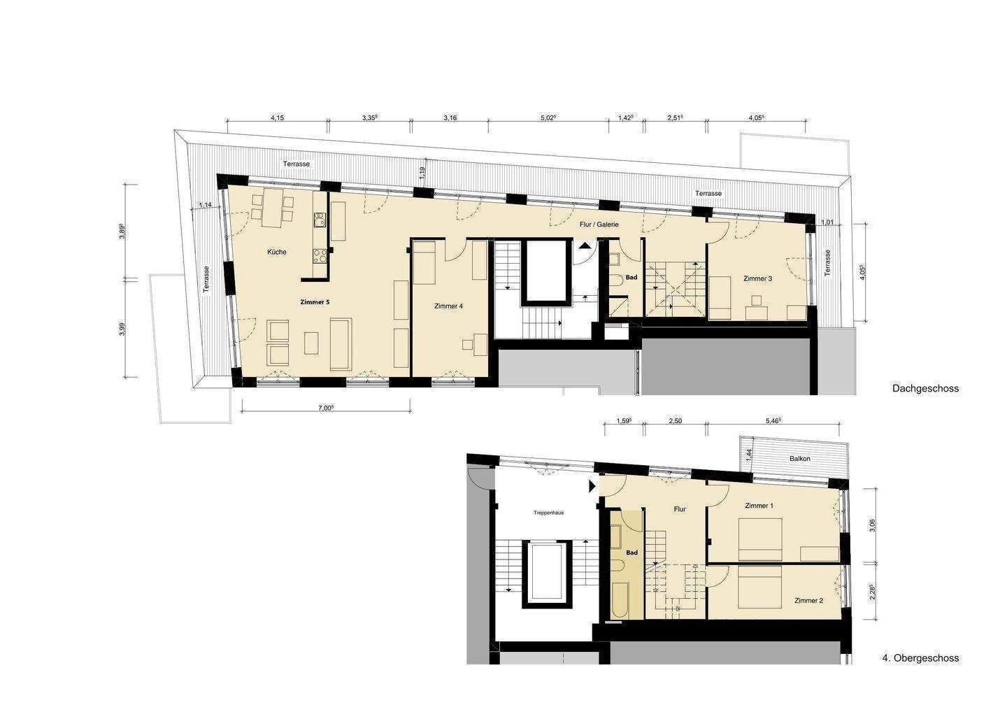
ANMELDUNG OPEN HOUSE: https://calendly.com/mlonestonecapital/open-house-villa-martens-1 In einer stilvollen, um 1910 errichteten Berliner Altbauvilla werden insgesamt 16 Wohneinheiten umfassend und mit hohem Qualitätsanspruch kernsaniert. Ziel der Sanierung ist es, den historischen Bestand zu bewahren und gleichzeitig zeitgemäßen Wohnkomfort nach heutigen Standards zu schaffen. Die hier angebotene Wohneinheit überzeugt durch ihre außergewöhnige Großzügigkeit und klare Raumstruktur. Auf rund 183 m² Wohnfläche verteilen sich fünf gut proportionierte Zimmer, die vielfältige Nutzungs- und Gestaltungsmöglichkeiten bieten – ideal für Familien, Paare mit Platzbedarf oder anspruchsvolle Eigennutzer. Besonderes Highlight sind die großzügigen Außenflächen: Zwei Terrassen sowie zwei Balkone erweitern den Wohnraum nach außen und schaffen Rückzugsorte für unterschiedliche Tageszeiten und Nutzungen. Das offene Wohn- und Esskonzept sorgt für eine angenehme, moderne Wohnatmosphäre und bildet das kommunikative Zentrum der WohnungÄhnliche Angebote
So funktioniert es
- Alle neuen Anzeigen matchen wir kostenlos mit Deinen Suchparametern.
- Passende Angebote senden wir Dir in einer E-Mail pro Tag.
- Du kannst auch verschiedene Suchen anlegen und Dich jederzeit abmelden. Mehr dazu



