Objektdaten
Objektbeschreibung
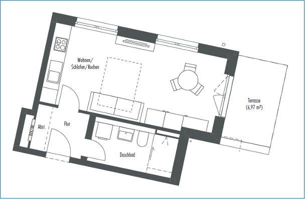
Wohnung in 2025 komplett neu saniert.Wohnung mit eigener Gasetagenheizung für Heizung und Warmwasser. Vorauszahlung für Heizung- und Warmwasser direkt an den Versorger. Neuwertige Elektrik mit neuen Sicherungskasten, Neuwertiges Bad mit Dusche und Fenster.Design- Bodenbeläge Vinyl in Holzoptik neuwertig, Separate Küche. Neuwertige hochwertige Kücheneinbauten im Eigentum des Vormieters. Neupreis 2025 Euro 6499,00 Ablösevorstellung des Mieters Euro 4.900,00 Euro.Ähnliche Angebote
So funktioniert es
- Alle neuen Anzeigen matchen wir kostenlos mit Deinen Suchparametern.
- Passende Angebote senden wir Dir in einer E-Mail pro Tag.
- Du kannst auch verschiedene Suchen anlegen und Dich jederzeit abmelden. Mehr dazu





