Kaufpreis 99.000 €
Zimmer 2
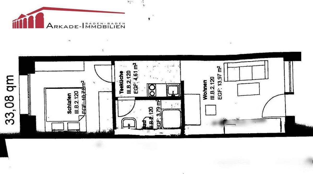
Größe 33 m²
76530 Baden-Baden
Objektdaten
Veröffentlicht am: 15. Februar 2026
Energieausweis: Liegt bei der Besichtigung vor
Danke! Bitte bestätige Deine E-Mail-Adresse – wir haben Dir soeben eine Mail geschickt.
Es gab ein Problem beim Absenden. Bitte versuche es erneut.
Bitte bestätige Deine E-Mail-Adresse, um Updates zu erhalten.
Objektbeschreibung
Zum Verkauf steht dieses exklusive Hotelappartement im Batschari Palais als Kapitalanlage. Das Batschari Palais war ursprünglich eine Zigarettenfabrik, die August Batschari 1834 gründete. Das Gebäude wurde von 2007 - 2009 kernsaniert und umgestaltet. Der historischer Charakter blieb erhalten und wurde durch die aufwändige Gestaltung perfekt in Szene gesetzt.Ein Teilbereich des Gebäudes mit insgesamt 70 Appartements wurde als Suiten-Hotel konzipiert, zu dem die 33,08m² große Suite gehört. Diese ist langfristig an den Hotelbetreiber vermietet, der sich um die Vermarktung und den laufenden Betrieb kümmert.Die monatliche Pacht (siehe Rubrik sonstige Angaben) wird vom Hotelbetreiber vergütet und ist unabhängig davon, ob die Hotelsuite vermietet ist oder nicht.
So funktioniert es
- Alle neuen Anzeigen matchen wir kostenlos mit Deinen Suchparametern.
- Passende Angebote senden wir Dir in einer E-Mail pro Tag.
- Du kannst auch verschiedene Suchen anlegen und Dich jederzeit abmelden. Mehr dazu
Wir haben soeben eine E-Mail mit Deinem Suchauftrag an Dich geschickt. – Klicke in dieser Mail auf den Bestätigungslink und schon geht's los. Prüfe ggf. auch Deinen Spamordner.
Es gab ein Problem beim Absenden Deiner E-Mail-Adresse. Bitte versuche es erneut.
WARNUNG: Bitte bestätige Deine E-Mail-Adresse, um regelmäßige Updates zu erhalten.