Objektdaten
Objektbeschreibung
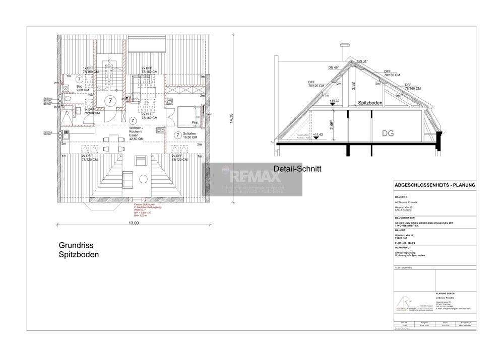
Sie wollten sich schon immer wie in einem Neubau fühlen, aber dennoch den Altbauflair herrschaftlich genießen? Dann ist diese Dachgeschoßwohnung direkt unter dem Dach mit genau das Richtige für Sie!Die hier beschrieben Wohneinheit im Dachgeschoss ist Teil eines exklusiven Projekts, das aus insgesamt sechs Einheiten besteht. Die Immobilie wird in Kürze kernsaniert und bietet eine hervorragende Investitionsmöglichkeit für Kapitalanleger, ist aber auch für Eigennutzer geeignet. Fertigstellungstermin wäre für Anfang 2027 geplant.Sie zeichnet sich durch eine durchdachte Raumaufteilung und hochwertige Materialien aus. Die großzügigen Wohn- und Essbereiche sind lichtdurchflutet. Dies bietet zusätzlichen Wohnkomfort.Ein weiteres Highlight ist das Badezimmer, das mit hochwertigen Armaturen und einer komfortablen Dusche ausgestattet ist.Die Fassade des Gebäudes ist ansprechend gestaltet und fügt sich harmonisch in die Umgebung ein. Die solide Bauweise und die Verwendung langlebiger Materialien versprechen eine nachhaltige Wertsteigerung.Die Lage im Dachgeschoss bietet eine angenehme Mischung aus Privatsphäre und Überblick. Die Wohnung ist sowohl für die Vermietung als auch für die Eigennutzung attraktiv und stellt eine sichere Investition in den Immobilienmarkt dar.So funktioniert es
- Alle neuen Anzeigen matchen wir kostenlos mit Deinen Suchparametern.
- Passende Angebote senden wir Dir in einer E-Mail pro Tag.
- Du kannst auch verschiedene Suchen anlegen und Dich jederzeit abmelden. Mehr dazu




