Objektdaten
Objektbeschreibung
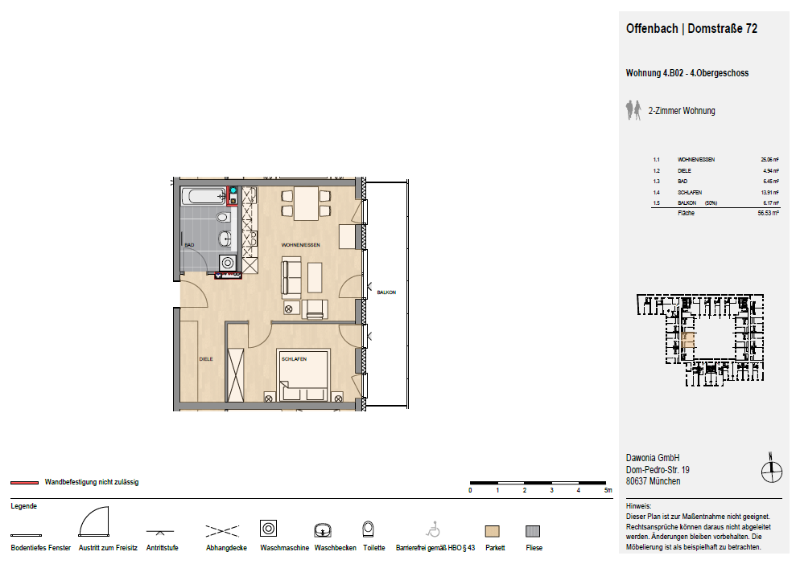
Bitte lesen! Renovierungsbedürftige Wohnung mit 3 Monate Mietfrei Du suchst nicht nur eine Wohnung, sondern ein Projekt? Du möchtest deine vier Wände nach deinen eigenen Vorstellungen gestalten und dafür 3 Monate mietfrei wohnen und das komplette Material vom Vermieter gestellt bekommen? Dann ist diese 2-Zimmer-Wohnung genau das Richtige für dich! Die Wohnung befindet sich in einem soliden Zustand, braucht aber eine Renovierung mit handwerklichem Geschick. Unser Deal: Wir zahlen, du baust! Statt einer fertig renovierten Wohnung bieten wir Dir folgendes an: • Mietfreie Zeit: Du zahlst für einen Zeitraum von 3 Monaten keine Miete, damit du dich voll und ganz auf die Renovierung konzentrieren kannst. • Material inklusive: Wir übernehmen die Kosten für die benötigten Baumaterialien (Bodenbeläge, Fliesen, Tapeten, Wandfarbe, etc.) nach vorheriger Absprache. Deine Aufgaben: • Wände tapezieren und streichen • Verlegen von neuen Bodenbelägen (Laminat/Vinyl/Fliesen) • Elektrotechnik nach weiterer Absprache Eckdaten zur Wohnung • 2 Zimmerwohnung + Küche + Badezimmer + Balkon im Grünen • eine neue Heizungsanlage ist bereits verbaut • Wohnfläche: ca. 50 m² • Verfügbar ab sofort • Miete nach der Renovierung: 750 € kalt zzgl. Nebenkosten i.H.v. 150€ Interesse geweckt? Schreib uns eine kurze Nachricht und erzähl uns idealerweise kurz, ob du bereits Erfahrung mit Renovierungsarbeiten hast. Wir freuen uns auf deine Nachricht! Balkon, Garten, Keller, Duschbad, Parkett, Laminat, FliesenEnergieträger: Gas
Energieausweis nicht vorhanden
Bitte den Beschreibungstext lesen!
Makleranfragen nicht erwünscht. Nach § 7 UWG sind unaufgeforderte Kontaktaufnahmen durch Makler ohne ausdrückliche Einwilligung des Empfängers verboten!
ohne-makler (OM) ist weder Anbieter noch Vermittler der Immobilie. OM betreibt eine Plattform für Immobilieneigentümer, die unter anderem die gleichzeitige Veröffentlichung einzelner Inserate auf mehreren Immobilienportalen ermöglicht. Die Inhalte dieser Inserate werden ausschließlich von Dritten verantwortet. Für die Richtigkeit, Vollständigkeit oder Rechtmäßigkeit der Angaben übernimmt OM keine Haftung. Hinweise auf mögliche Rechtsverstöße können jederzeit gemeldet werden und werden nach Prüfung umgehend bearbeitet.
Ähnliche Angebote
So funktioniert es
- Alle neuen Anzeigen matchen wir kostenlos mit Deinen Suchparametern.
- Passende Angebote senden wir Dir in einer E-Mail pro Tag.
- Du kannst auch verschiedene Suchen anlegen und Dich jederzeit abmelden. Mehr dazu





