Objektdaten
Objektbeschreibung
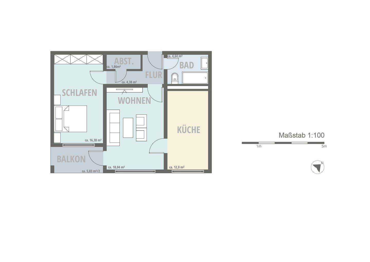
Diese sehr gepflegte und gut geschnittene 3-Zi.-Wohnung befindet sich in einem 2006 umgebauten Mehrfamilienhaus mit 19 Wohneinheiten. Die schöne Wohnung mit 64 qm Wohnfläche ist im 1. OG und ist nur ca. 1 km von der Uni entfernt. Sie verfügt über 2 Schlafzimmer, 1 großes Wohnzimmer, mit Essbereich und Küche, 1 Bad mit Dusche und WC, 1 Kellerabteil und 1 TG-Stellplatz. Sie ist daher u.a. ideal für Studenten geeignet. Die Wohnung ist aktuell frei, nicht vermietet und sofort verfügbar.Folgende Modernisierungen wurden durchgeführt:- 2006 wurde das Haus komplett umgebaut- 2012 Modernisierung vom Bad und InnenausbauDas Grundstück befindet sich im Erbbaurecht. Diese Lösung stellt eine attraktive Alternative zum klassischen Grundstückskauf dar.- Die Erbbauzinsrate beträgt 837,47€ p.a.- Restlaufzeit 31,17 JahreÄhnliche Angebote
So funktioniert es
- Alle neuen Anzeigen matchen wir kostenlos mit Deinen Suchparametern.
- Passende Angebote senden wir Dir in einer E-Mail pro Tag.
- Du kannst auch verschiedene Suchen anlegen und Dich jederzeit abmelden. Mehr dazu




