Kaufpreis 990.000 €
Zimmer 5
Größe 152 m²
79189 Bad Krozingen
Objektdaten
Veröffentlicht am: 18. Februar 2026
Frei ab: 1. August 2027
Baujahr: 2026
Energieausweis: Liegt bei der Besichtigung vor
Danke! Bitte bestätige Deine E-Mail-Adresse – wir haben Dir soeben eine Mail geschickt.
Es gab ein Problem beim Absenden. Bitte versuche es erneut.
Bitte bestätige Deine E-Mail-Adresse, um Updates zu erhalten.
Objektbeschreibung
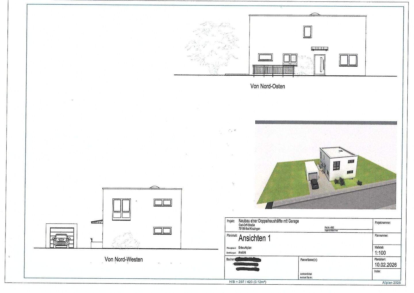
Umständehalber verkaufen wir im Kundenauftrag eine projektierte Doppelhaushälfte inklusive dem Bauplatz mit 309 qm, der geräumt und voll erschlossen ist im Kurgarten I, in bester Wohnlage, inklusive der fertigen Planung, und inklusive dem Keller. Nicht im Kaufpreis enthalten ist das Erdgeschoss und das Obergeschoss. Planungsänderungen können selbstverständlich noch vorgenommen werden. Die Gesamtwohnfläche beträgt 152 qm und verteilt sich über 5 Zimmer und einer Ankleide.
Es handelt sich um eines der letzten freien Grundstücke im Kurgarten I. Die Grundstücke um das Objekt herum sind in privat Besitz und werden weder bebaut noch verkauft.
Der Kaufpreis ist wegen der Umstände verhandelbar.
So funktioniert es
- Alle neuen Anzeigen matchen wir kostenlos mit Deinen Suchparametern.
- Passende Angebote senden wir Dir in einer E-Mail pro Tag.
- Du kannst auch verschiedene Suchen anlegen und Dich jederzeit abmelden. Mehr dazu
Wir haben soeben eine E-Mail mit Deinem Suchauftrag an Dich geschickt. – Klicke in dieser Mail auf den Bestätigungslink und schon geht's los. Prüfe ggf. auch Deinen Spamordner.
Es gab ein Problem beim Absenden Deiner E-Mail-Adresse. Bitte versuche es erneut.
WARNUNG: Bitte bestätige Deine E-Mail-Adresse, um regelmäßige Updates zu erhalten.