Objektdaten
Objektbeschreibung
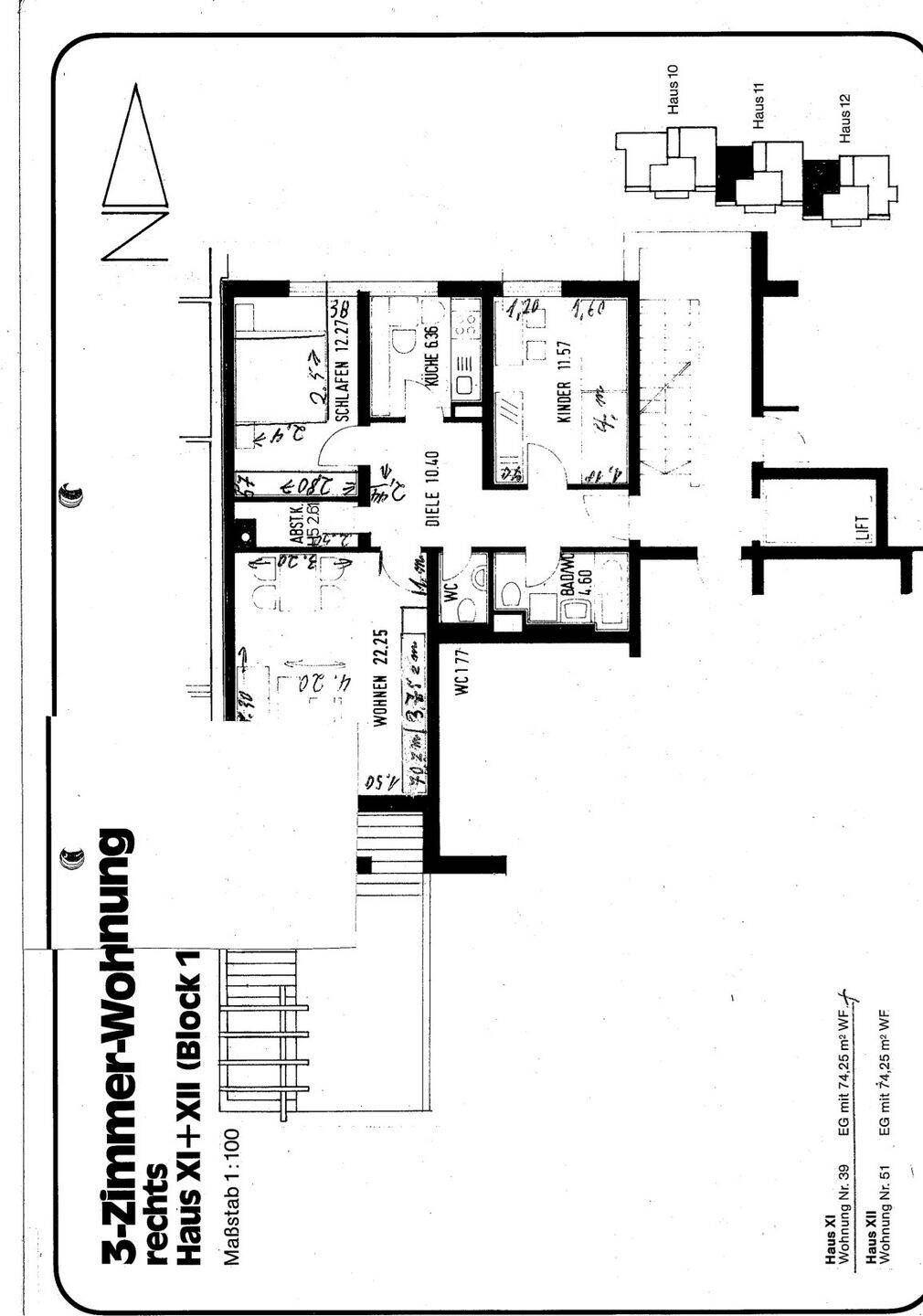
Neubau aus 2023, Mehrfamilienhausanlage mit nur 22 Wohnungen in diesem Hauseingang,KFW- 55 Standard !!, nur 3 Stockwerke, ruhige LageÄhnliche Angebote
So funktioniert es
- Alle neuen Anzeigen matchen wir kostenlos mit Deinen Suchparametern.
- Passende Angebote senden wir Dir in einer E-Mail pro Tag.
- Du kannst auch verschiedene Suchen anlegen und Dich jederzeit abmelden. Mehr dazu





