Objektdaten
Objektbeschreibung
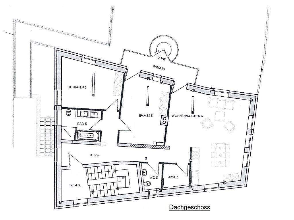
Diese großzügige 3-Zimmer-Dachgeschosswohnung überzeugt durch ihren offenen Grundriss, helle Räume und ein modernes, maritim inspiriertes Wohnambiente.Der lichtdurchflutete Wohn- und Essbereich mit integrierter Einbauküche bildet das Herzstück der Wohnung. Sichtbare Deckenbalken verleihen dem Raum besonderen Charme, während große Fenster für eine freundliche Atmosphäre und einen schönen Ausblick sorgen. Die moderne Küche ist funktional ausgestattet und harmonisch in den Wohnbereich integriert.Das Schlafzimmer präsentiert sich ruhig und gemütlich mit stilvollen Einbauten und angenehmer Raumhöhe. Ein weiteres Zimmer eignet sich ideal als Gäste-, Arbeits- oder Kinderzimmer. Das großzügige Tageslichtbad verfügt über eine bodengleiche Dusche, Badewanne sowie einen Doppelwaschtisch und bietet damit hohen Komfort. Ergänzt wird das Raumangebot durch ein separates WC und einen praktischen Abstellraum.Die Wohnung verbindet modernes Wohnen mit einem Hauch von maritimem Flair - ideal für alle, die großzügiges Wohnen in besonderer Lage schätzen.Ein Ideales Objekt für Paare und auch als Ferienobjekt für den privaten gebrauch.Ähnliche Angebote
So funktioniert es
- Alle neuen Anzeigen matchen wir kostenlos mit Deinen Suchparametern.
- Passende Angebote senden wir Dir in einer E-Mail pro Tag.
- Du kannst auch verschiedene Suchen anlegen und Dich jederzeit abmelden. Mehr dazu





