Kaufpreis 549.000 €
Zimmer 4
Größe 165 m²
17495 Karlsburg
Objektdaten
Veröffentlicht am: 21. Februar 2026
Energieausweis: Liegt bei der Besichtigung vor
Danke! Bitte bestätige Deine E-Mail-Adresse – wir haben Dir soeben eine Mail geschickt.
Es gab ein Problem beim Absenden. Bitte versuche es erneut.
Bitte bestätige Deine E-Mail-Adresse, um Updates zu erhalten.
Objektbeschreibung
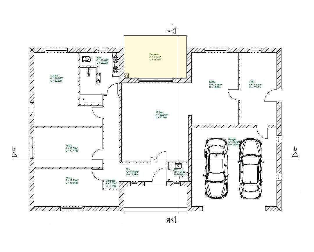
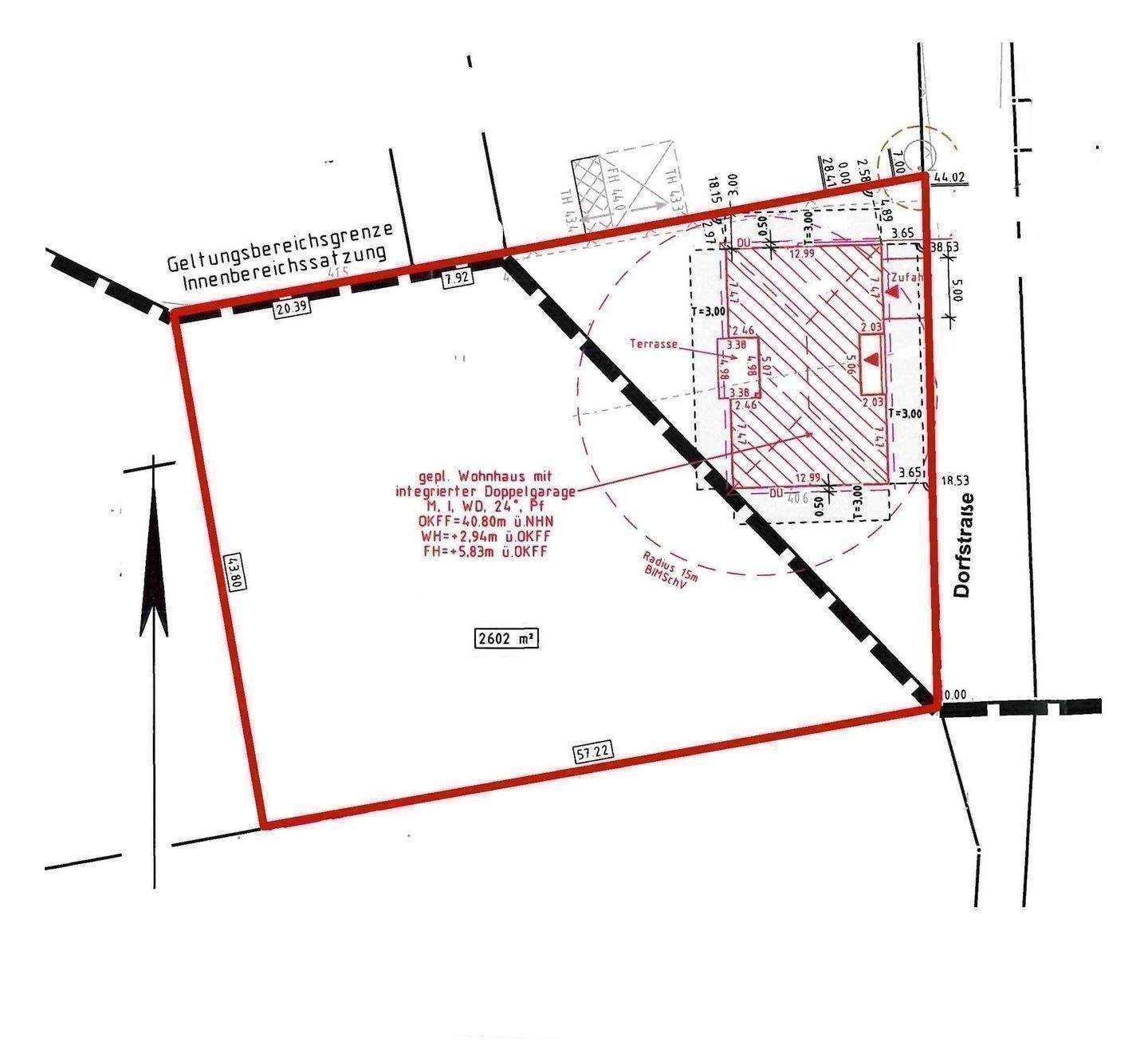
Zu verkaufen ist hier ein Grundstück inklusive einem Neubauprojekt Bungalow mit Doppelgarage. Eine Baugenehmigung liegt vor, so das sofort begonnen werden kann.Die genaue Ausstattung erkläre ich Ihnen gerne in einem gemeinsamen Termin.Es handelt sich um einen Neubau. Natürlich haben Sie noch die Möglichkeit eigene Dinge mit einzubringen. Der Preis inklusive Grundstück, Garage und Bäder (gefliest) liegt bei 549.000,00 €.Die Hausanschlüsse, Wand- und Bodenbeläge und Außenanlage müssen vom zukünftigen Bauherrn in Eigenleistung erbracht oder bei uns zusätzlich in Auftrag gegeben werden.Die Größe des Grundstückes ist 2.602 m² zu einem Preis von 150.000,00 €. Das Haus ist 165,45 m² + Doppelgarage 42,30 m² zu einem Preis von 399.000,00 €.Gerne beantworten wir Ihre Fragen oder stehen Ihnen für einen Besichtigungstermin zur Verfügung.
So funktioniert es
- Alle neuen Anzeigen matchen wir kostenlos mit Deinen Suchparametern.
- Passende Angebote senden wir Dir in einer E-Mail pro Tag.
- Du kannst auch verschiedene Suchen anlegen und Dich jederzeit abmelden. Mehr dazu
Wir haben soeben eine E-Mail mit Deinem Suchauftrag an Dich geschickt. – Klicke in dieser Mail auf den Bestätigungslink und schon geht's los. Prüfe ggf. auch Deinen Spamordner.
Es gab ein Problem beim Absenden Deiner E-Mail-Adresse. Bitte versuche es erneut.
WARNUNG: Bitte bestätige Deine E-Mail-Adresse, um regelmäßige Updates zu erhalten.