Warmmiete 1.050 €
Zimmer 5
Größe 80 m²
92245 Kümmersbruck
Objektdaten
Veröffentlicht am: 23. Februar 2026
Kaltmiete 850 €
Baujahr: 1974
Energieausweis: Liegt bei der Besichtigung vor
Danke! Bitte bestätige Deine E-Mail-Adresse – wir haben Dir soeben eine Mail geschickt.
Es gab ein Problem beim Absenden. Bitte versuche es erneut.
Bitte bestätige Deine E-Mail-Adresse, um Updates zu erhalten.
Objektbeschreibung
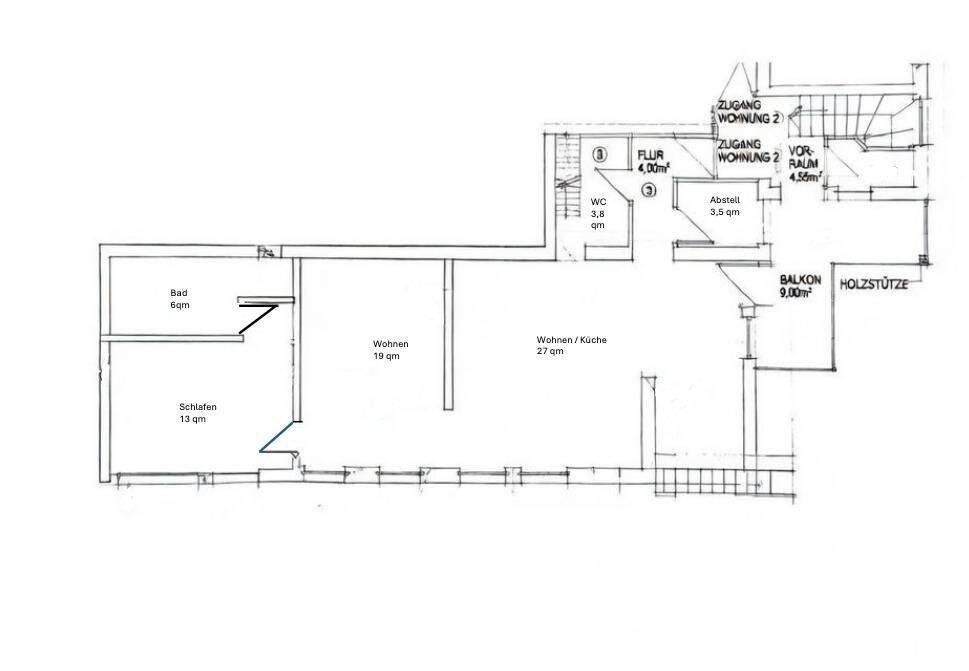
Diese charmante Dachgeschosswohnung in einem 3-Parteienhaus ist sofort verfügbar und bietet Ihnen ein gemütliches Zuhause zur Miete. Mit einer Wohnfläche von 80 m² verteilt sich die Wohnung auf 5 Zimmer, darunter 3 geräumige Schlafzimmer und ein helles Tageslichtbad mit Wanne.Die Wohnung verfügt über eine praktische Raumaufteilung mit einer Diele/Flur, einem separaten WC, einem voll ausgestatteten Tageslichtbad, einer Einbauküche inklusive, einem Essbereich, einem geräumigen Wohnzimmer, dem Elternschlafzimmer und zwei Kinderzimmern. Ein besonderes Highlight ist die Loggia, die Ihnen einen wunderbaren Ausblick und zusätzlichen Freiraum bietet.Zusätzlich zur Wohnung gehört ein Kellerraum für extra Stauraum. Eine Garage gehört ebenfalls zur Wohnung und bietet praktischen Platz für Ihr Fahrzeug. Sie haben auch die Möglichkeit, den Garten mitzunutzen.
So funktioniert es
- Alle neuen Anzeigen matchen wir kostenlos mit Deinen Suchparametern.
- Passende Angebote senden wir Dir in einer E-Mail pro Tag.
- Du kannst auch verschiedene Suchen anlegen und Dich jederzeit abmelden. Mehr dazu
Wir haben soeben eine E-Mail mit Deinem Suchauftrag an Dich geschickt. – Klicke in dieser Mail auf den Bestätigungslink und schon geht's los. Prüfe ggf. auch Deinen Spamordner.
Es gab ein Problem beim Absenden Deiner E-Mail-Adresse. Bitte versuche es erneut.
WARNUNG: Bitte bestätige Deine E-Mail-Adresse, um regelmäßige Updates zu erhalten.