Kaufpreis 159.000 €
Zimmer 5
Größe 128 m²
27729 Vollersode
Objektdaten
Veröffentlicht am: 24. Februar 2026
Baujahr: 1953
Energieausweis: Liegt bei der Besichtigung vor
Danke! Bitte bestätige Deine E-Mail-Adresse – wir haben Dir soeben eine Mail geschickt.
Es gab ein Problem beim Absenden. Bitte versuche es erneut.
Bitte bestätige Deine E-Mail-Adresse, um Updates zu erhalten.
Objektbeschreibung
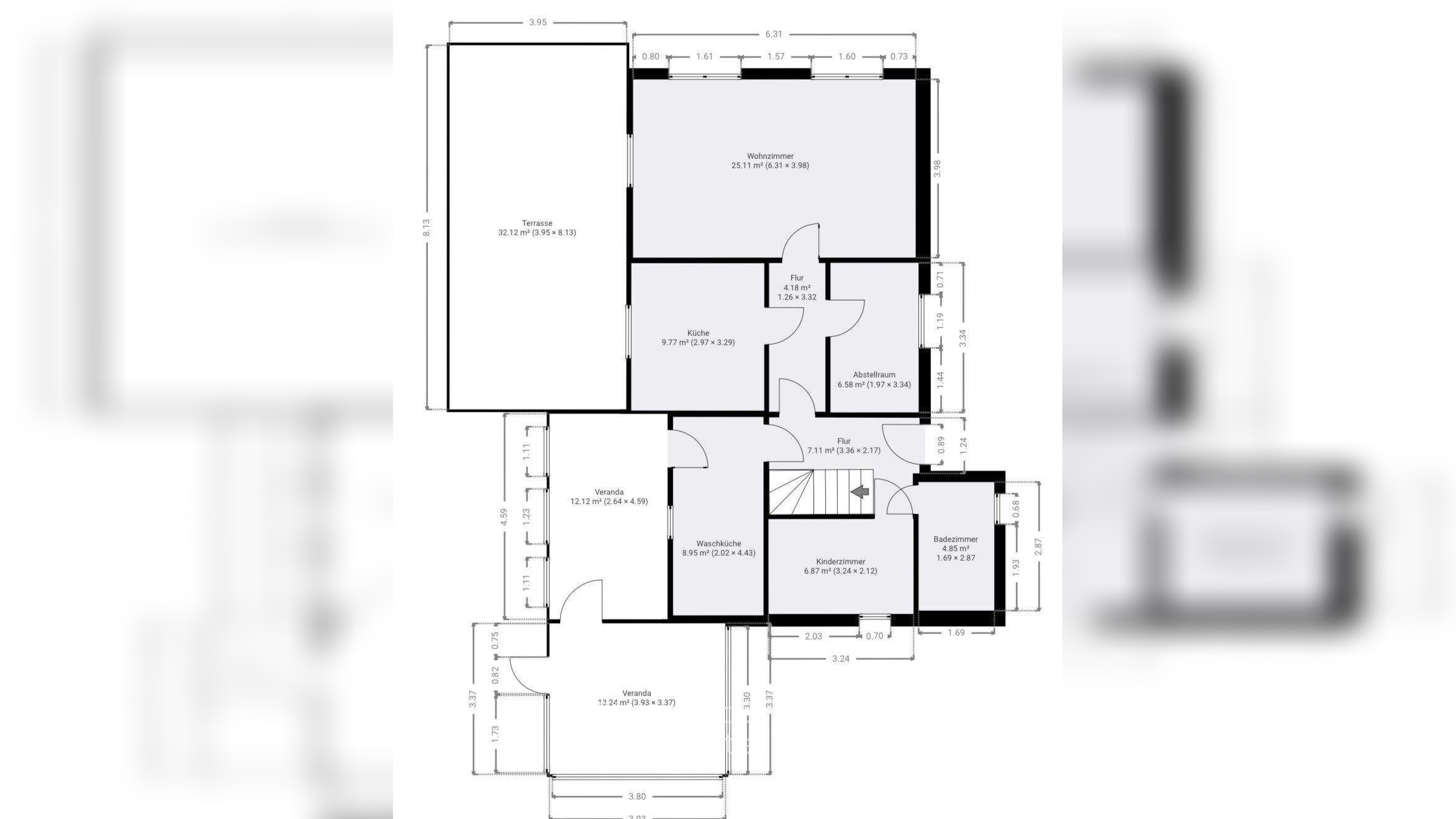
Dieses Einfamilienhaus aus dem Baujahr circa 1953 präsentiert sich als solide, jedoch deutlich renovierungsbedürftige Immobilie mit vielseitigem Entwicklungspotenzial. Die Wohnfläche von ca. 128,60m² verteilt sich auf insgesamt fünf Zimmer, wodurch verschiedene Nutzungsmöglichkeiten bestehen, auch wenn der aktuelle Zustand Modernisierungsmaßnahmen in mehreren Bereichen erforderlich macht.Die vier Schlafzimmer bieten grundsätzlich ausreichend Platz für Familien oder Personen mit erhöhtem Raumbedarf, während die zwei vorhandenen Badezimmer ebenfalls nicht mehr dem heutigen Standard entsprechen und eine Sanierung benötigen. Ergänzend zur Wohnfläche stehen ca. 38,91m² Nutzfläche zur Verfügung, die derzeit überwiegend als Abstell- und Funktionsräume genutzt werden. Diese Bereiche eignen sich beispielsweise für Hobby, Werkstatt oder Lager, weisen jedoch ebenfalls renovierungsbedürftige Elemente auf.Das großzügige Grundstück mit einer Fläche von ca. 2249m² stellt ein besonderes Merkmal dieser Immobilie dar und eröffnet vielfältige Optionen. Eine Teilung des Grundstücks ist grundsätzlich möglich, und unter der Voraussetzung potenzieller Baumfällungen kann ein Teil des Geländes als Baugrundstück in Betracht kommen.Bereits vorliegende Teilungsvorschläge bieten erste Anhaltspunkte, ersetzen jedoch nicht die notwendigen behördlichen Genehmigungen, die von Interessenten einzuholen wären. Eine vorhandene Garage bietet zusätzliche Abstellmöglichkeiten, befindet sich jedoch wie große Teile des Hauses ebenfalls in einem Zustand, der Renovierungen erforderlich macht.Insgesamt richtet sich diese Immobilie an Käufer, die bereit sind, in Sanierungsmaßnahmen zu investieren, den Charme eines älteren Hauses schätzen und langfristig das Potenzial des großen Grundstücks für eigene Vorstellungen oder mögliche Entwicklungen nutzen möchten.
So funktioniert es
- Alle neuen Anzeigen matchen wir kostenlos mit Deinen Suchparametern.
- Passende Angebote senden wir Dir in einer E-Mail pro Tag.
- Du kannst auch verschiedene Suchen anlegen und Dich jederzeit abmelden. Mehr dazu
Wir haben soeben eine E-Mail mit Deinem Suchauftrag an Dich geschickt. – Klicke in dieser Mail auf den Bestätigungslink und schon geht's los. Prüfe ggf. auch Deinen Spamordner.
Es gab ein Problem beim Absenden Deiner E-Mail-Adresse. Bitte versuche es erneut.
WARNUNG: Bitte bestätige Deine E-Mail-Adresse, um regelmäßige Updates zu erhalten.