Objektdaten
Objektbeschreibung
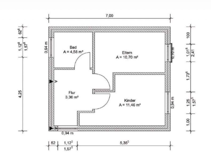
Bei den Ferienhaus handelt es sich um einen Neubau, was ca. 400 Meter von der Ostsee ist. Alle Fenster sind isolierverglast und durch die Fußbodenheizung, hat mann ein angenehmes Raumklima, was mit einer Wärmepumpenheitzung betrieben wird. Durch einen Kamin im Wohnzimmer erreicht man ein angenehmes Wohngefühl. Durch eine Holztreppe gelangt man ins Obergeschoss. Die Übergabe erfolgt Schlüsselfertig. Das Grundstück kann auf 350 qm erweitert werden, was sich auf dem Kaufpreis auswirkt.Ähnliche Angebote
So funktioniert es
- Alle neuen Anzeigen matchen wir kostenlos mit Deinen Suchparametern.
- Passende Angebote senden wir Dir in einer E-Mail pro Tag.
- Du kannst auch verschiedene Suchen anlegen und Dich jederzeit abmelden. Mehr dazu




