Objektdaten
Objektbeschreibung
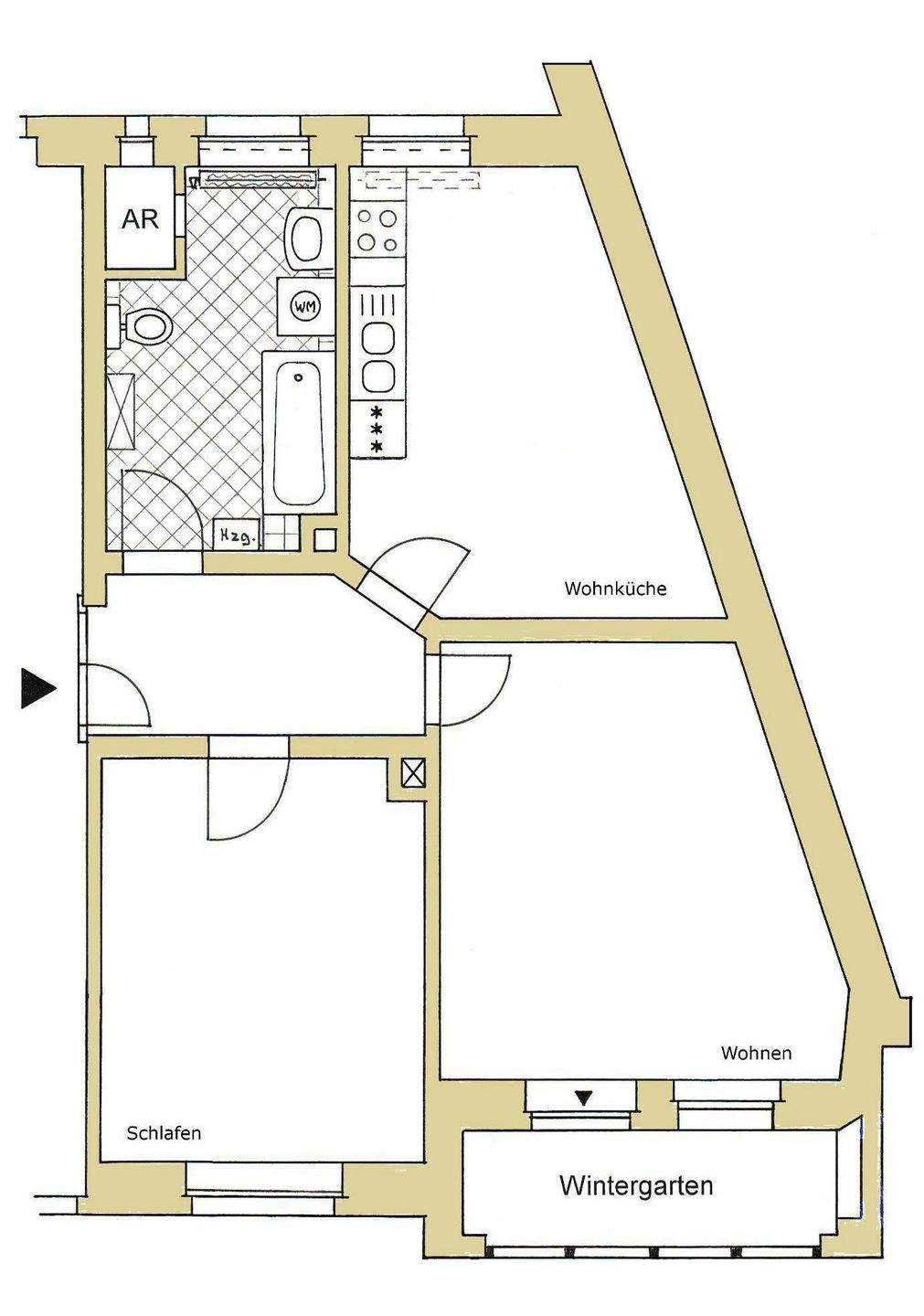
Diese sehr gut geschnittene schöne Wohnung befindet sich im Herzen Braunschweigs in verkehrsberuhigter Straße. Frisch renoviert Hochwertiges Laminat in allen Räumen, Flur und Küche Neue Gastherme Zur Abstimmung eines Besichtigungstermins benötigen wir von Ihnen: Angaben zum Namen, Anschrift, Kontaktdaten, Telefonnummer bzw. E-Mail Eine Selbstauskunft aller Mietinteressenten ist optional. Zur Besichtigung bringen Sie bitte einen gültigen Personalausweis mit.Ähnliche Angebote
So funktioniert es
- Alle neuen Anzeigen matchen wir kostenlos mit Deinen Suchparametern.
- Passende Angebote senden wir Dir in einer E-Mail pro Tag.
- Du kannst auch verschiedene Suchen anlegen und Dich jederzeit abmelden. Mehr dazu





