Kaufpreis 285.000 €
Zimmer 3
Größe 75 m²
52372 Kreuzau
Objektdaten
Veröffentlicht am: 27. Februar 2026
Energieausweis: Liegt bei der Besichtigung vor
Danke! Bitte bestätige Deine E-Mail-Adresse – wir haben Dir soeben eine Mail geschickt.
Es gab ein Problem beim Absenden. Bitte versuche es erneut.
Bitte bestätige Deine E-Mail-Adresse, um Updates zu erhalten.
Objektbeschreibung
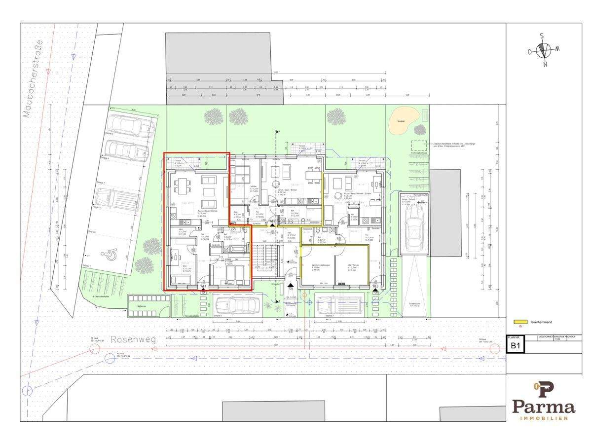
Diese attraktive Eigentumswohnung entsteht in einem modernen Mehrfamilienhaus mit insgesamt neun Wohneinheiten und befindet sich derzeit in der Planungsphase. Das Neubauprojekt wird nach zeitgemäßen, energieeffizienten Standards errichtet und vereint moderne Architektur mit einem durchdachten Wohnkonzept.Insgesamt entstehen neun moderne Eigentumswohnungen mit Wohnflächen zwischen ca. 44,87 m² und ca. 82,82 m². Gerne informieren wir Sie persönlich über die einzelnen Wohnungen.Die 3-Zimmer-Erdgeschosswohnung bietet auf ca. 75,69 m² Wohnfläche ein komfortables und funktionales Raumangebot. Sie umfasst zwei gut geschnittene Schlafzimmer, einen praktischen Abstellraum, ein modernes Badezimmer sowie einen großzügigen Wohn- und Essbereich mit offener Küchenplanung, der den Mittelpunkt der Wohnung bildet. Ein eigener Hauseingang, der ausschließlich dieser Einheit zugeordnet ist, sorgt für ein hohes Maß an Privatsphäre und verleiht der Wohnung einen nahezu hausähnlichen Charakter. Eine gemütliche Terrasse ergänzt den Wohnraum ideal und lädt zum Verweilen im Freien ein.Im Rahmen des Projekts werden zudem sieben Außenstellplätze sowie eine Garage errichtet, die optional erworben werden können. Ein Außenstellplatz ist zum Preis von 15.000,00 € erhältlich, die Garage für 25.000,00 €.Die Wohnung wird schlüsselfertig übergeben, ausgenommen sind lediglich die Malerarbeiten und die Fußbodenbeläge, sodass der neue Eigentümer seine individuellen Gestaltungswünsche umsetzen kann. Die Kaufpreiszahlung erfolgt nach Baufortschritt.
So funktioniert es
- Alle neuen Anzeigen matchen wir kostenlos mit Deinen Suchparametern.
- Passende Angebote senden wir Dir in einer E-Mail pro Tag.
- Du kannst auch verschiedene Suchen anlegen und Dich jederzeit abmelden. Mehr dazu
Wir haben soeben eine E-Mail mit Deinem Suchauftrag an Dich geschickt. – Klicke in dieser Mail auf den Bestätigungslink und schon geht's los. Prüfe ggf. auch Deinen Spamordner.
Es gab ein Problem beim Absenden Deiner E-Mail-Adresse. Bitte versuche es erneut.
WARNUNG: Bitte bestätige Deine E-Mail-Adresse, um regelmäßige Updates zu erhalten.