Objektdaten
Objektbeschreibung
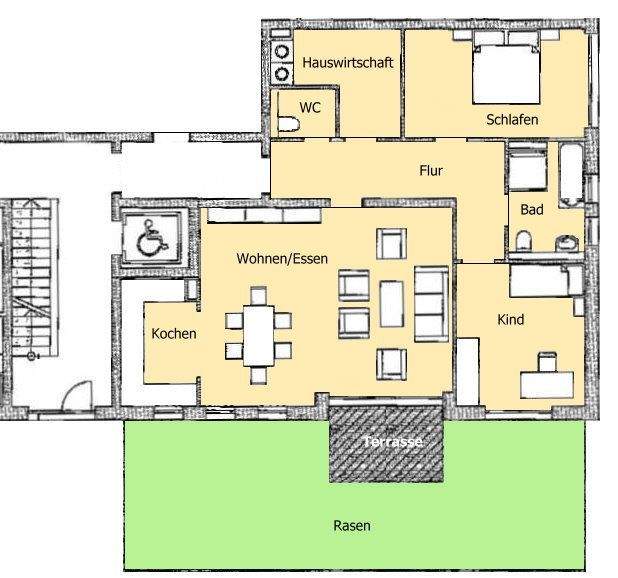
Die Wohnung im 1. Obergeschoss liegt im vorderen Bereich des Hauses.Vom Eingang rechts befindet das Wohnzimmer mit offenem Küchenbereich. Von hier haben Sie den Zugang zum überdachten Balkon.Vom Eingang links befindet sich die separate Gästetoilette mit zum Bad passender Ausstattung.Daneben ist der Hauswirtschaftsraum mit Anschlüssen für Waschmaschine und Trockner.Bad mit Dusche, WC und Waschbecken ist am Ende des Flurs. Es ist modern mit großformatigen Fliesen und einer Glasduschwand ausgestattet. Links vom Bad ist das Schlafzimmer angeordnet, welches auch über einen Balkon verfügt.Rechts vom Bad das Kinderzimmer.Die Böden in Flur, Schlafzimmer, Kinderzimmer und Wohnzimmer sind mit hochwertigem Parkett belegt.Das Gebäude wurde im Jahr 2015 zum ersten Mal bezogen und ist nach dem neusten Stand gebaut.Alle Fenster mit Isolierverglasung und Rollläden (tlw. elektrisch). Ein eigener Kellerraum und ein PKW-Stellplatz in der Tiefgarage runden das Angebot ab.So funktioniert es
- Alle neuen Anzeigen matchen wir kostenlos mit Deinen Suchparametern.
- Passende Angebote senden wir Dir in einer E-Mail pro Tag.
- Du kannst auch verschiedene Suchen anlegen und Dich jederzeit abmelden. Mehr dazu




