Ideal für Familienliebhaber - ein freistehendes Einfamilienhaus mit großem Garten und Doppelgarage in Gernsheim. Gut angebunden an Infrastruktur und nahe Autobahnanschluss zur A 67.
Objektdaten
Objektbeschreibung
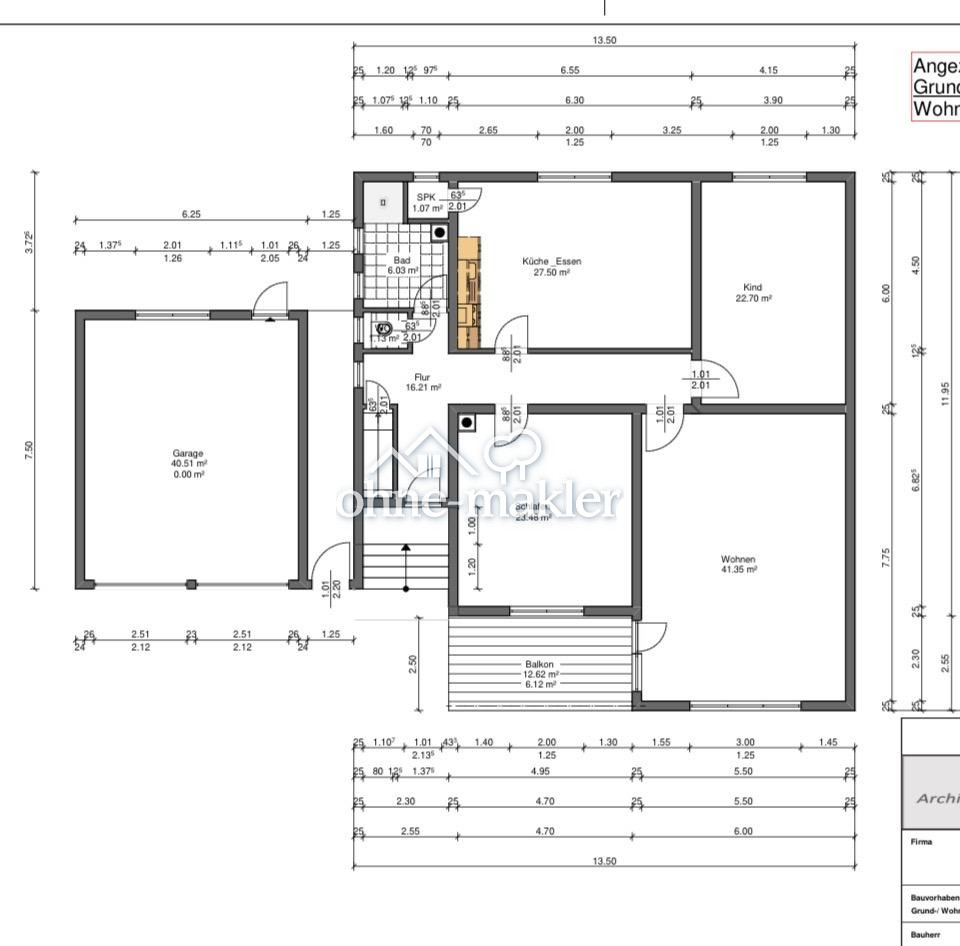
Dieses freistehende Einfamilienhaus aus dem Baujahr 1966 bietet die ideale Grundlage für Menschen, die sich den Traum vom eigenen Zuhause mit viel Platz erfüllen möchten. In ruhiger Wohnlage von Gernsheim gelegen, überzeugt vor allem das großzügige Grundstück von rund 836 m², das Raum für Gartenleben, Entspannung und individuelle Gestaltungsideen eröffnet. Hier wohnen Sie angenehm ruhig und dennoch gut angebunden: Autobahnanschluss, Bahnhof, Einkaufsmöglichkeiten, Kindergarten und Schulen sind schnell erreichbar. Gleichzeitig laden umliegende Naherholungsgebiete zu Spaziergängen, sportlichen Aktivitäten oder einfach zum Durchatmen im Grünen ein. Damit verbindet die Lage entspanntes Wohnen mit alltagspraktischer Nähe zu wichtigen Einrichtungen. Die Wohnfläche von rund 145 m² (Wohnfläche gemäß aktueller Wohnflächenberechnung (Architekt, 2026)) verteilt sich auf fünf Zimmer und bietet eine solide Basis für ein komfortables Familienleben. Zusätzlich steht ein ausgebauter Dachboden als Nutzfläche zur Verfügung. Durch mehrere Dachflächenfenster wirkt dieser Bereich hell und lichtdurchflutet und eignet sich hervorragend als Hobbyraum, Homeoffice oder persönlicher Rückzugsort. Auch der Keller bietet weitere praktische Nutzflächen für Alltag und Organisation. Im Haus stehen zwei Badezimmer sowie ein Gäste-WC zur Verfügung – praktisch für den Familienalltag und Besuch. Draußen bieten zwei Terrassen zusätzliche Möglichkeiten, den Außenbereich zu nutzen – ob morgens mit Kaffee, am Nachmittag in der Sonne oder abends in ruhiger Atmosphäre. Der große Garten mit Gartenhäuschen ergänzt das Ganze und schafft viel Platz für Freizeit, Spiel und eigene Ideen. Für Fahrzeuge steht eine Doppelgarage zur Verfügung, die komfortabel Platz für zwei Autos bietet. Beheizt wird das Familienhaus über eine Ölheizung. Verbraucherenergieausweis liegt vor. Endenergieverbrauch: 191,7 kWh/(m²·a) Energieeffizienzklasse: F Dieses Einfamilienhaus verbindet ruhige Lage, großzügigen Außenbereich, zusätzliche Nutzflächen und vielseitige Nutzungsmöglichkeiten – eine ideale Grundlage für alle, die in Gernsheim ein Zuhause mit Platz, Potenzial und Lebensqualität suchen. Es handelt sich um einen Privatverkauf, für Käufer fällt keine zusätzliche Provision an. Wir bitten um Verständnis, dass Makleranfragen nicht berücksichtigt werden. Besichtigungen sind nach vorheriger Terminvereinbarung möglich. Terrasse, Garten, Keller, Dachterrasse, Vollbad, Gäste-WC, Parkett, Teppichboden, FliesenEnergieträger: Öl
Makleranfragen nicht erwünscht. Nach § 7 UWG sind unaufgeforderte Kontaktaufnahmen durch Makler ohne ausdrückliche Einwilligung des Empfängers verboten!
ohne-makler (OM) ist weder Anbieter noch Vermittler der Immobilie. OM betreibt eine Plattform für Immobilieneigentümer, die unter anderem die gleichzeitige Veröffentlichung einzelner Inserate auf mehreren Immobilienportalen ermöglicht. Die Inhalte dieser Inserate werden ausschließlich von Dritten verantwortet. Für die Richtigkeit, Vollständigkeit oder Rechtmäßigkeit der Angaben übernimmt OM keine Haftung. Hinweise auf mögliche Rechtsverstöße können jederzeit gemeldet werden und werden nach Prüfung umgehend bearbeitet.
So funktioniert es
- Alle neuen Anzeigen matchen wir kostenlos mit Deinen Suchparametern.
- Passende Angebote senden wir Dir in einer E-Mail pro Tag.
- Du kannst auch verschiedene Suchen anlegen und Dich jederzeit abmelden. Mehr dazu



