Objektdaten
Objektbeschreibung
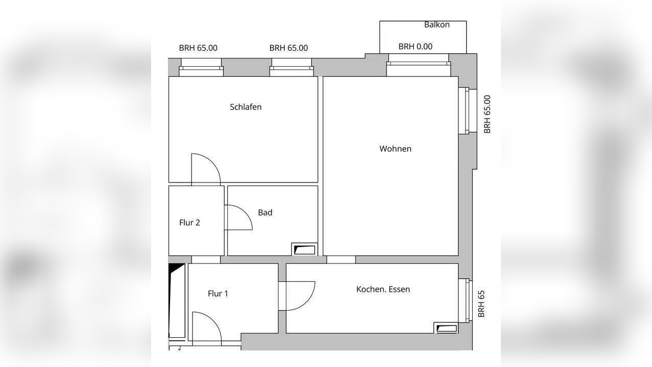
Die Wohneinheiten der Kategorie 4 verfügen jeweils über 1 Balkon, der einen direkten Blick auf die Ostsee bietet. Die Wohneinheiten weisen neben großzügigem Wohn- und Schlafzimmer ein Bad mit Walk-In-Dusche sowie eine getrennte Küche mit Einbauküche von Neptune Home Berlin und Miele-Einbaugeräten auf.Ähnliche Angebote
So funktioniert es
- Alle neuen Anzeigen matchen wir kostenlos mit Deinen Suchparametern.
- Passende Angebote senden wir Dir in einer E-Mail pro Tag.
- Du kannst auch verschiedene Suchen anlegen und Dich jederzeit abmelden. Mehr dazu




