Objektdaten
Objektbeschreibung
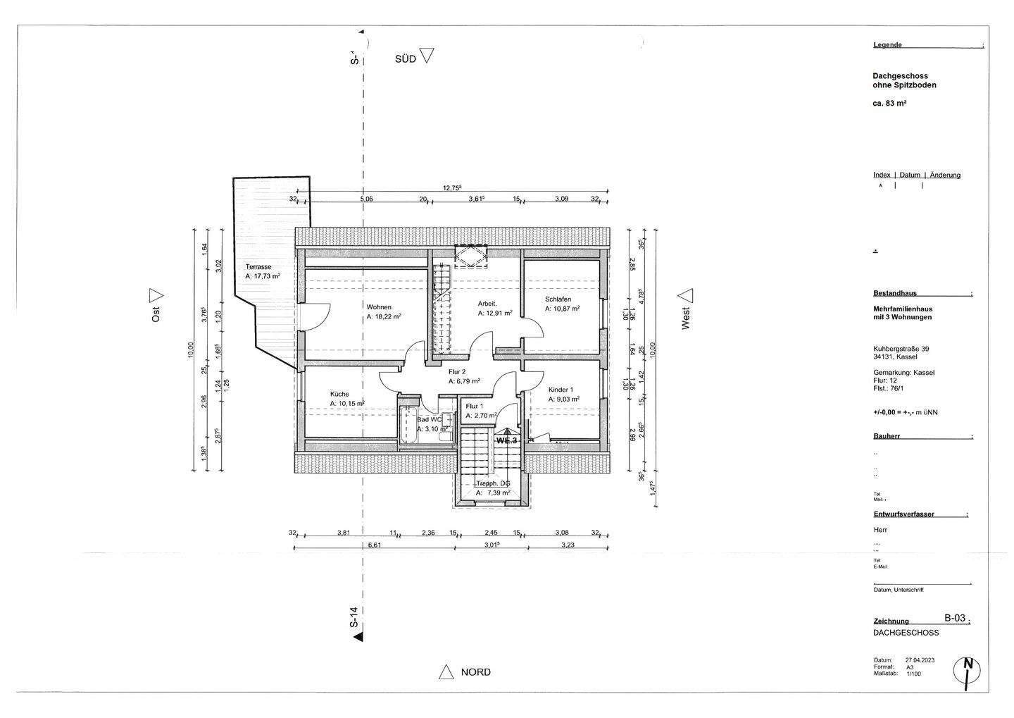
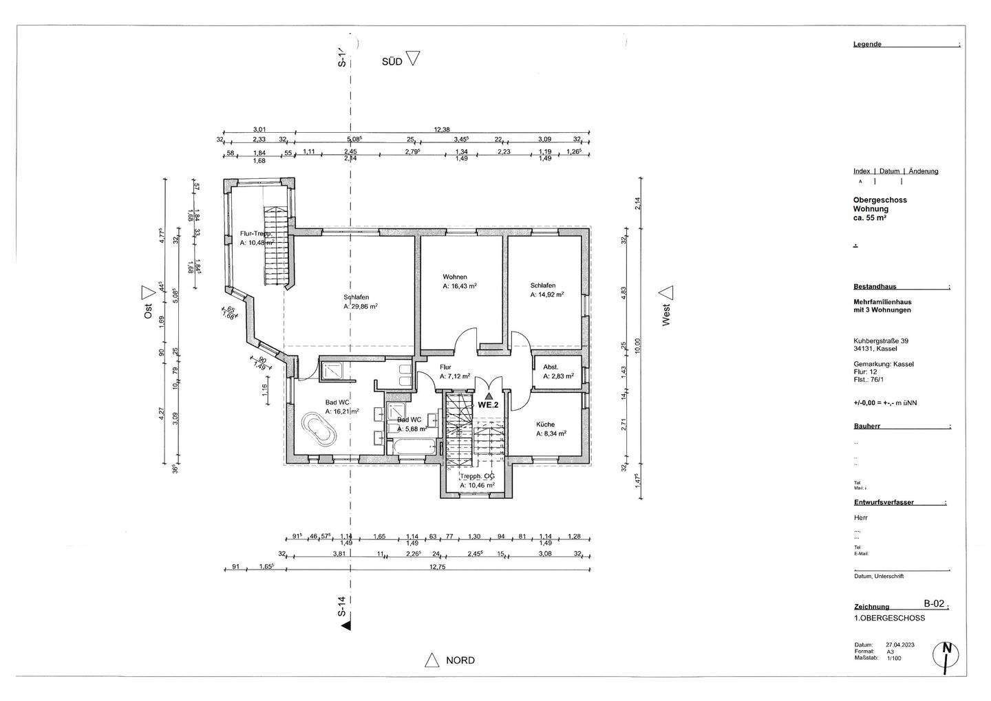
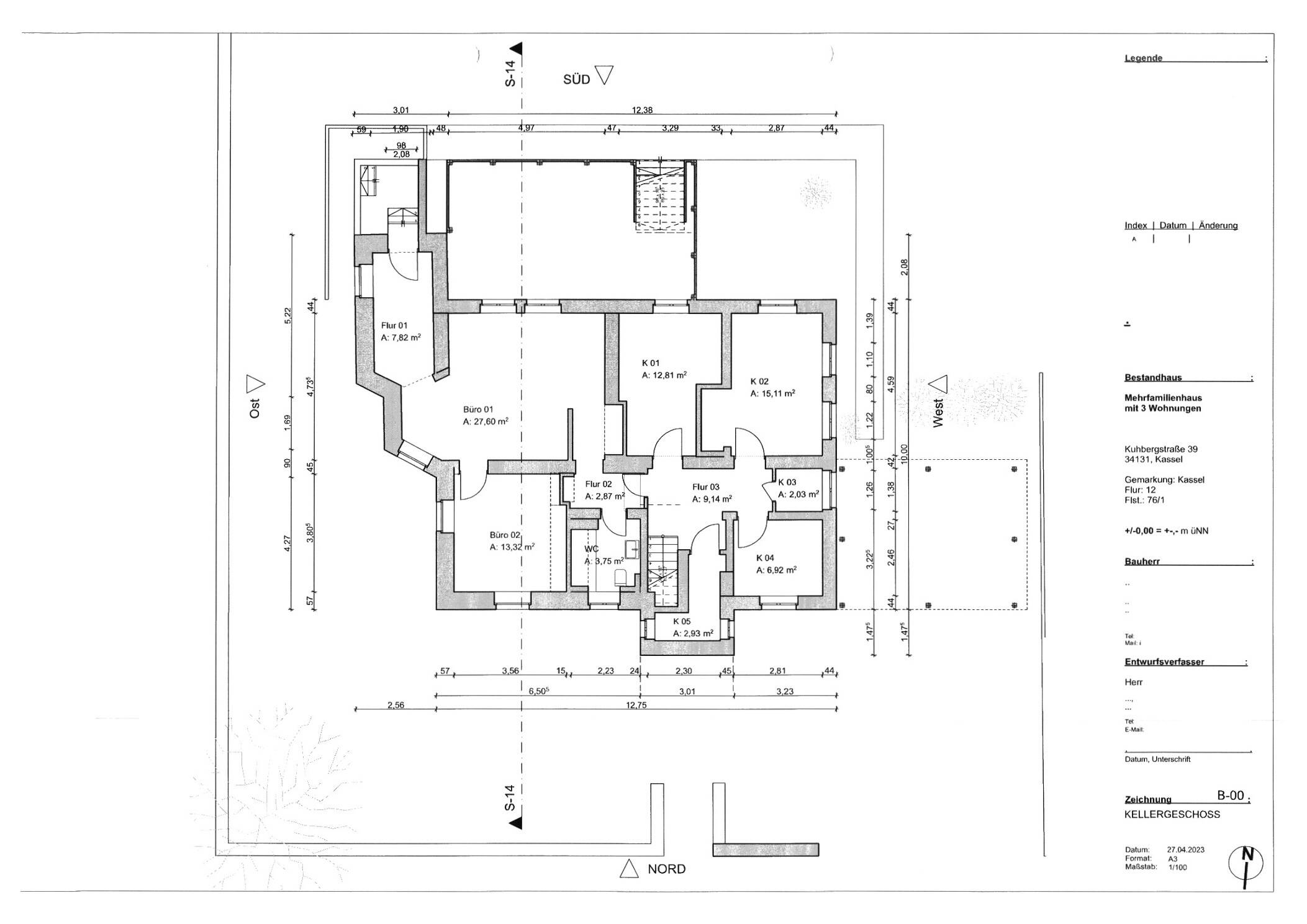
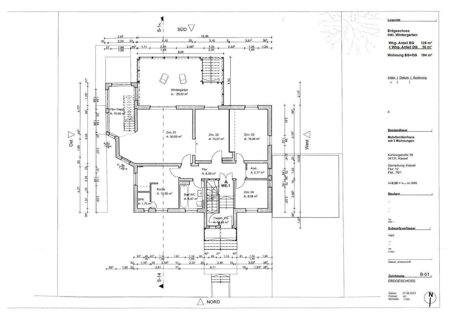
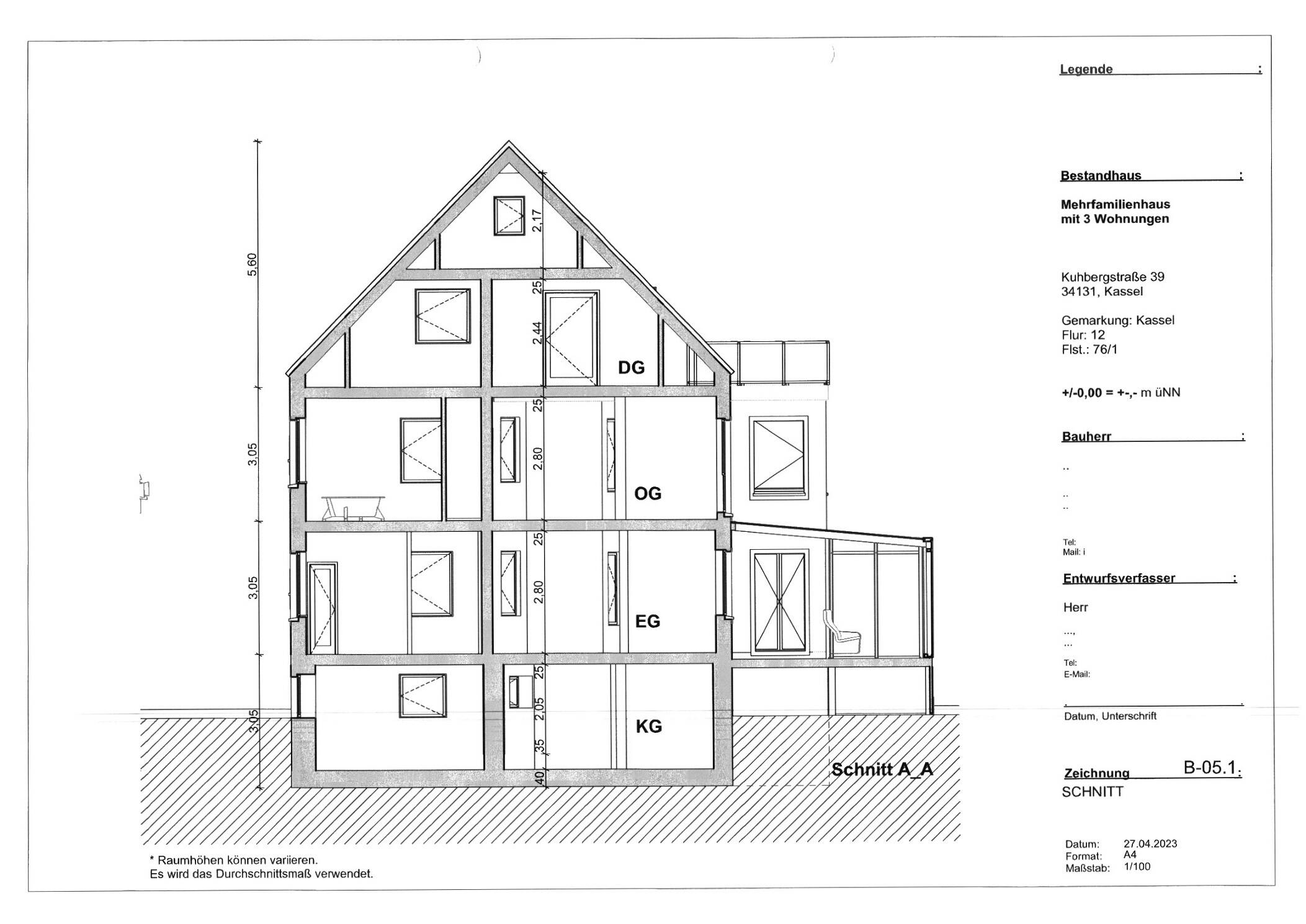
Das Gebäude steht im vorderen Bereiche eines 1.266 m² großen Grundstücks (Bodenrichtwert 390.-€ / m²). Es hat zwei Vollgeschosse und ein Dachgeschoss, das noch durch Ausbau erweitert werden kann. Insgesamt stehen derzeit ca. 325 m² Wohnfläche zur Verfügung. Ein Carport bietet 2 Kfz-Stellplätze, zusätzlich gibt es einen weiteren Stellplatz.Das Gebäude steht zur Zeit leer und kann nach Bedarf neu gestaltet werden.Eine Baugenehmigung auf Erweiterung für ca. 420 m² Wohnfläche (5 Whg.) ist rechtskräftig erteilt.Ähnliche Angebote
So funktioniert es
- Alle neuen Anzeigen matchen wir kostenlos mit Deinen Suchparametern.
- Passende Angebote senden wir Dir in einer E-Mail pro Tag.
- Du kannst auch verschiedene Suchen anlegen und Dich jederzeit abmelden. Mehr dazu


