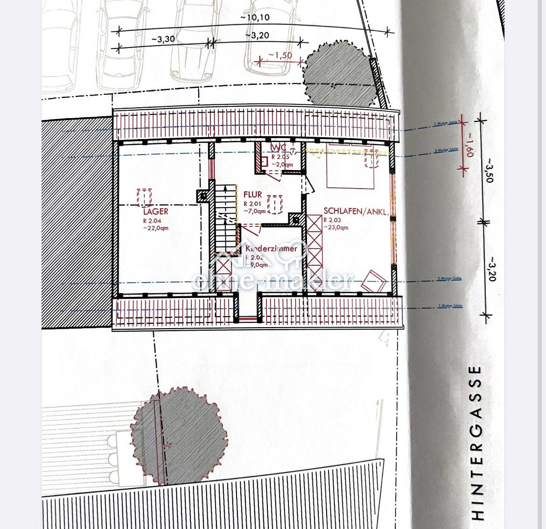
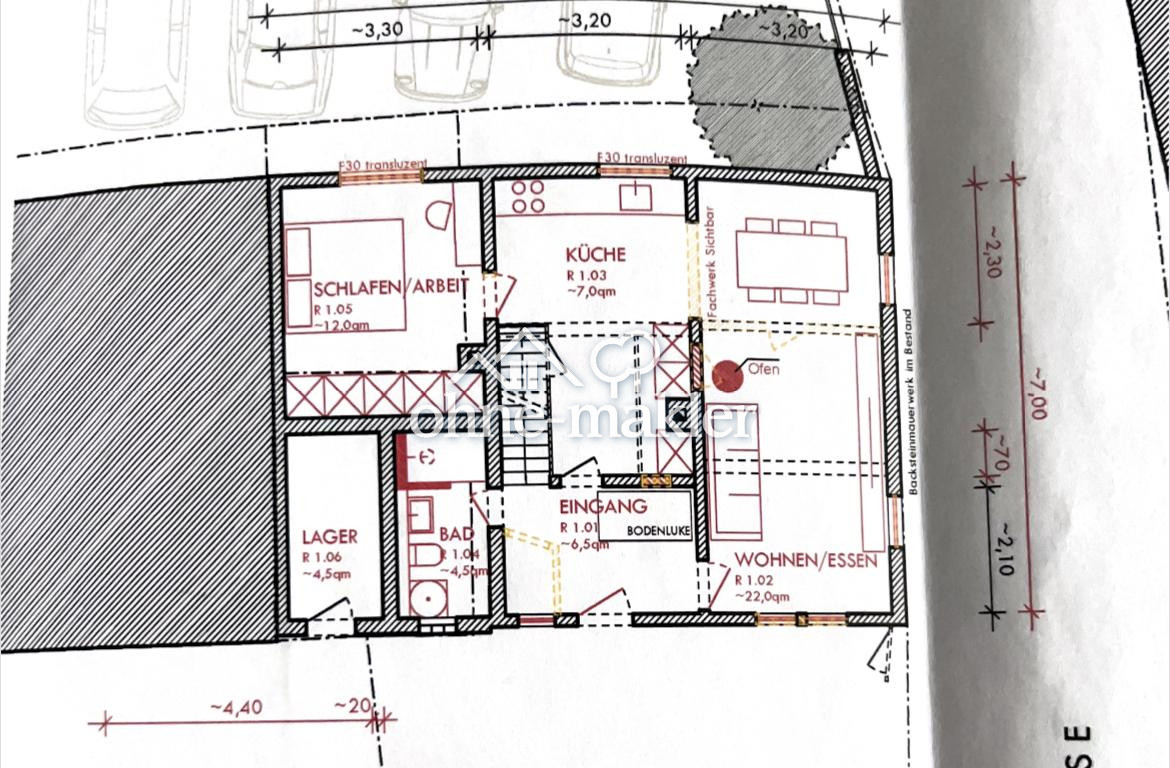
Charmantes Immobilienensemble in der historischen Altstadt von Großauheim, nur ca. 200 Meter vom Main entfernt. Das Ensemble besteht aus einem renovierten Haus (112 m²) und einem kernsanierter Fachwerkhaus (92 m²). Sehr ruhige Lage mit hervorragender Infrastruktur.
Objektdaten
Objektbeschreibung
Standort: Hanau-Großauheim Preis für beide Häuser 675.000€ Inmitten der historischen Altstadt von Großauheim, nur ca. 200 Meter vom Main entfernt, befindet sich dieses charmante und vielseitig nutzbare Immobilienensemble. Die ruhige, idyllische Lage kombiniert naturnahes Wohnen mit hervorragender Infrastruktur. Objektdetails Hinterhaus (Baujahr 1968) •Wohnfläche: ca. 112 m² •2017–2018 vollständig renoviert •Gasheizung •Eigener Keller Fachwerkhaus (2018 kernsaniert) •Wohnfläche: ca. 92 m² •Zusätzlich ca. 22 m² Lagerfläche (zu Wohnraum ausbaubar) •Liebevoll und fachmännisch saniert •Gasheizung •Eigener Keller Die Häuser können auch einzeln verkauft werden, allerdings wird der Gesamtverkauf bevorzugt. Fachwerkhaus: 320.000€ + Hinterhaus 390.000€ Weitere Highlights •Doppelgarage mit eigener Hausnummer (zu Wohnhaus umbaubar) •Weitere Garagen ebenfalls mit Ausbaupotenzial •Carport mit Ziegeldach •Gepflasterter Hof mit Kopfsteinpflaster •Garten •Abstellräume •Ideal für Mehrgenerationenwohnen •Auch für Gewerbe- oder Handwerksbetriebe geeignet Lage & Infrastruktur •Nur ca. 200 m vom Main entfernt •Einkaufsmöglichkeiten, Bank, Post, Bäcker in unmittelbarer Nähe •Praxis für Allgemeinmedizin •Wochenmarkt in direkter Umgebung •Bus und Bahnhof in ca. 4 Gehminuten erreichbar •Sehr gute Anbindung an die Hanauer Innenstadt Sonstiges •Objekt aktuell bewohnt •Verfügbar nach Absprache •Privatverkauf – keine Maklerprovision •Makleranfragen nicht erwünscht Garten, Keller, Vollbad, Duschbad, Einbauküche, Gäste-WC, Laminat, Teppichboden, Fliesen, Sonstiges (s. Text)Energieträger: Gas
Energieausweis nicht vorhanden
Makleranfragen nicht erwünscht. Nach § 7 UWG sind unaufgeforderte Kontaktaufnahmen durch Makler ohne ausdrückliche Einwilligung des Empfängers verboten!
ohne-makler (OM) ist weder Anbieter noch Vermittler der Immobilie. OM betreibt eine Plattform für Immobilieneigentümer, die unter anderem die gleichzeitige Veröffentlichung einzelner Inserate auf mehreren Immobilienportalen ermöglicht. Die Inhalte dieser Inserate werden ausschließlich von Dritten verantwortet. Für die Richtigkeit, Vollständigkeit oder Rechtmäßigkeit der Angaben übernimmt OM keine Haftung. Hinweise auf mögliche Rechtsverstöße können jederzeit gemeldet werden und werden nach Prüfung umgehend bearbeitet.
Ähnliche Angebote
So funktioniert es
- Alle neuen Anzeigen matchen wir kostenlos mit Deinen Suchparametern.
- Passende Angebote senden wir Dir in einer E-Mail pro Tag.
- Du kannst auch verschiedene Suchen anlegen und Dich jederzeit abmelden. Mehr dazu

