Objektdaten
Objektbeschreibung
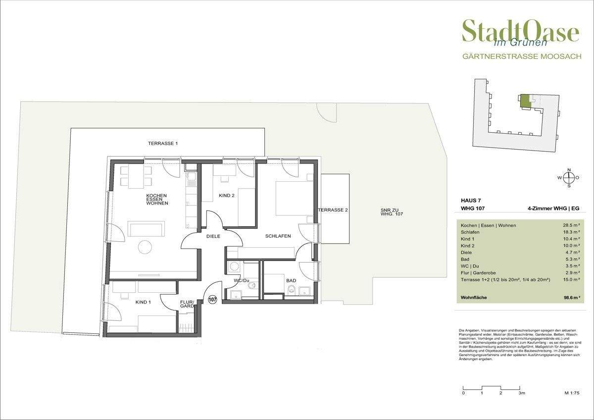
Gerne stehen wir Ihnen für individuelle Beratungstermine in unserem Info-Pavillon direkt am Baufeld zur Verfügung! Terminvereinbarung unter:089 / 66 59 60 oder unter [email protected] - Wir freuen uns auf Sie!Diese durchdachte 4-Zimmer-Erdgeschosswohnung verbindet großzügiges Wohnen in Stadtlage mit naturnahem Lebensgefühl. Der offene Wohn- und Essbereich bildet den Mittelpunkt der Wohnung und öffnet sich zum umlaufenden Gartenanteil. Das 18 m² große Schlafzimmer überzeugt mit viel Stauraum und einem Tageslichtbad en Suite für entspannte Wellnessstunden. Ein weiteres Bad sowie zwei zusätzliche Zimmer bieten flexible Nutzungsmöglichkeiten für Familie, Arbeiten oder Gäste. Ein Zuhause, das Raum für individuelle Lebenskonzepte und entspanntes Ankommen bietet.EINMALIGE CHANCE - OBJEKTHIGHLIGHTS:*ABSOLUTE RUHE MITTEN IN DER STADT: Zentrale Lage in München-Moosach, großzügige Abstände, perfekte Infrastruktur, U-Bahn in unmittelbarer Nähe.*TOP PREIS-LEISTUNG: Äußerst attraktive Kaufpreise, beste Grundriss-, Bau- und Lagequalitäten - ein Vergleich lohnt sich!*ENERGIE-KONZEPT: Autark von Öl & Gas: Grundwasser-Wärmepumpe kombiniert mit Photovoltaik *QUALITÄTS-NEUBAU: Entscheiden Sie sich jetzt für die Zukunft! Unsere "StadtOase" bietet zeitgemäßes Design und modernste, energieeffiziente Technologien, die viel Geld sparen. *EIGENE STREUOBSTWIESE: Herrliche Oase & Erholung direkt vor der Haustür*KUTTER - IHR STARKER BAU-PARTNER: Fast 100-jährige Geschichte, über 2.000 Mitarbeiter - Sicherheit und Qualität für Ihr neues Zuhause!Ähnliche Angebote
So funktioniert es
- Alle neuen Anzeigen matchen wir kostenlos mit Deinen Suchparametern.
- Passende Angebote senden wir Dir in einer E-Mail pro Tag.
- Du kannst auch verschiedene Suchen anlegen und Dich jederzeit abmelden. Mehr dazu



