Objektdaten
Objektbeschreibung
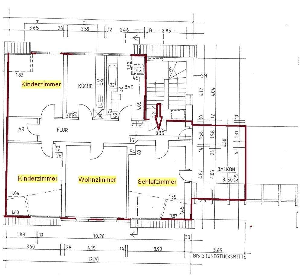
Das 5 Familienhaus befindet sich ca. 10 Gehminuten vom Stadtzentrum entfernt. Das Haus wurde 1996 umfassend saniert und modernisiert. Auf dem Grundstück steht eine Carportanlage.So funktioniert es
- Alle neuen Anzeigen matchen wir kostenlos mit Deinen Suchparametern.
- Passende Angebote senden wir Dir in einer E-Mail pro Tag.
- Du kannst auch verschiedene Suchen anlegen und Dich jederzeit abmelden. Mehr dazu





