Objektdaten
Objektbeschreibung
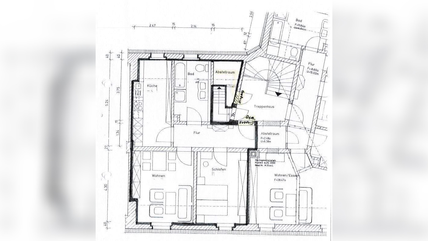
Diese gepflegte 2-Zimmer-Dachgeschosswohnung in Freiberg überzeugt durch ihren charmanten Charakter und eine attraktive Wohnlage in einem solide erhaltenen Mehrfamilienhaus aus dem Baujahr 1909. Das Gebäude erstreckt sich über insgesamt vier Etagen. Auf ca. 56 m² Wohnfläche bietet die Wohnung eine durchdachte Raumaufteilung. Alle Räume gehen vom Flur ab. Ideal für zusätzlichen Stauraum und eine ordentliche Trennung von Wohn- und Nutzflächen gehören zu der Einheit ein Abstellraum direkt neben der Wohnung (vom Treppenhaus zugänglich) sowie eine Dachbodenkammer. Die Dachgeschosslage sorgt für ein angenehmes Wohnambiente und unterstreicht den besonderen Altbauflair, der gerade bei Immobilien dieser Bauzeit sehr geschätzt wird. Die Wohnung befindet sich in einem gepflegten Zustand und eignet sich sowohl für Eigennutzer als auch für Kapitalanleger, die eine werthaltige Immobilie in Freiberg erwerben möchten. Das monatliche Hausgeld beträgt 283,43 €. Insgesamt handelt es sich um eine stimmige, gut nutzbare Dachgeschosswohnung mit klassischem Charme und solider Basis - eine interessante Gelegenheit im Kaufsegment.Ähnliche Angebote
So funktioniert es
- Alle neuen Anzeigen matchen wir kostenlos mit Deinen Suchparametern.
- Passende Angebote senden wir Dir in einer E-Mail pro Tag.
- Du kannst auch verschiedene Suchen anlegen und Dich jederzeit abmelden. Mehr dazu




