Objektdaten
Objektbeschreibung
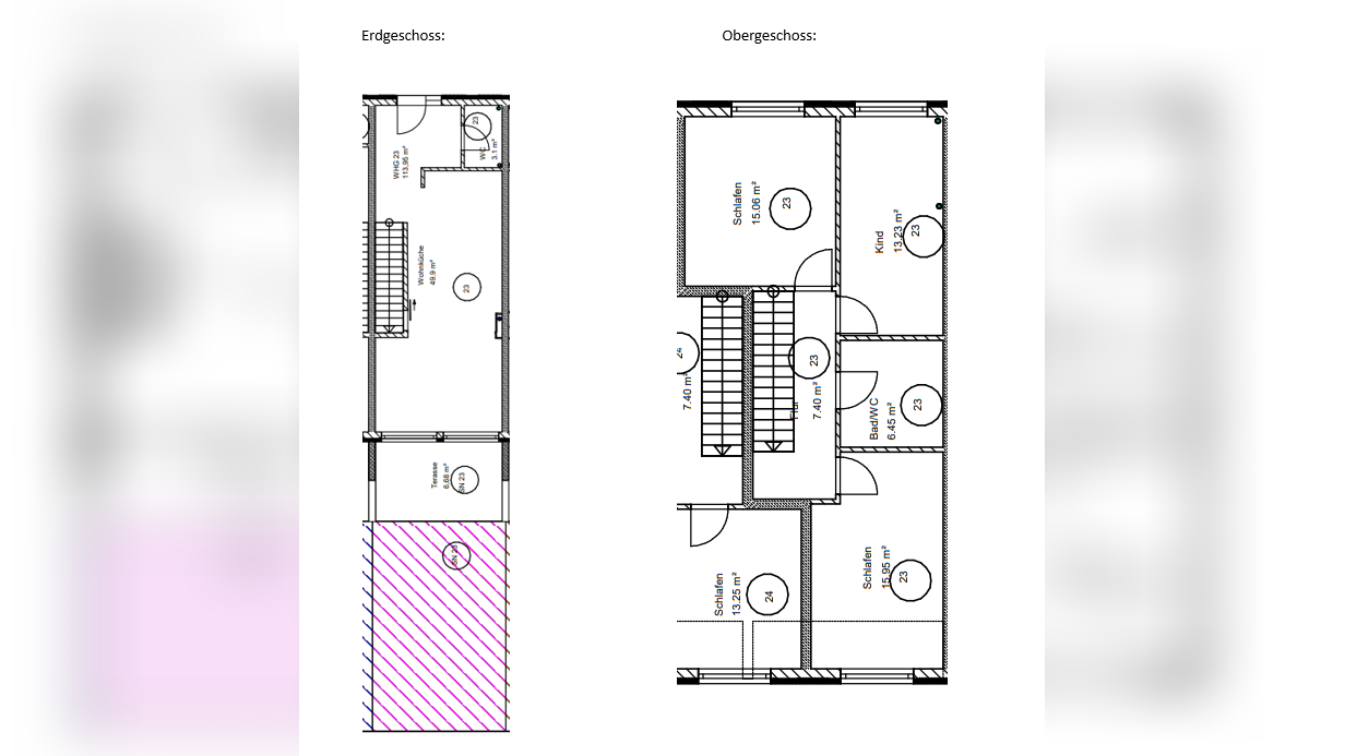
In Mankham - Feichten an der Alz entsteht eine moderne Wohnanlage mit insgesamt 40 hochwertig ausgestatteten Wohnungen, aufgeteilt in zwei identische Baukörper (jeweils 20 Wohnungen). Die Architektur verbindet zeitloses Design mit durchdachter Funktionalität und schafft ein wohltuendes zu Hause für Familien, Paare und Singles. Moderne Fernwärme-Heiztechnik sorgt für effiziente, nachhaltige Wärmeversorgung mit geringem CO2-Ausstoß und laufenden Betriebskosten. Außerdem gibt es eine großzügige Tiefgarage mit direktem Zugang zu beiden Häusern, sowie mehrere Außenstellplätze für Gäste und Anwohner.So funktioniert es
- Alle neuen Anzeigen matchen wir kostenlos mit Deinen Suchparametern.
- Passende Angebote senden wir Dir in einer E-Mail pro Tag.
- Du kannst auch verschiedene Suchen anlegen und Dich jederzeit abmelden. Mehr dazu





