Objektdaten
Objektbeschreibung
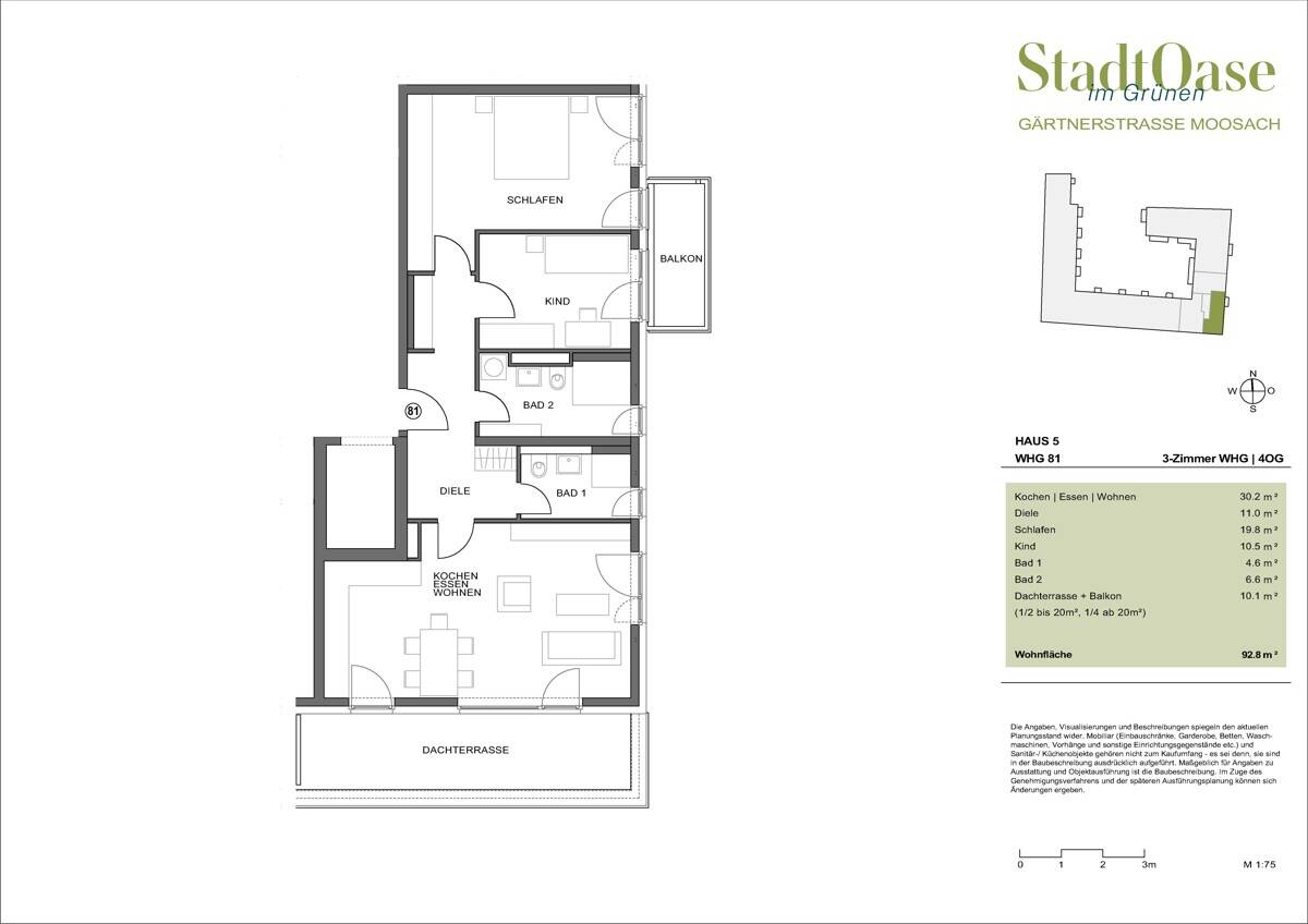
Gerne stehen wir Ihnen für individuelle Beratungstermine in unserem Info-Pavillon direkt am Baufeld zur Verfügung! Terminvereinbarung unter:089 / 66 59 60 oder unter [email protected] - Wir freuen uns auf Sie!Inmitten einer ruhigen Wohngegend mit bester Infrastruktur erwartet Sie diese 3-Zimmer-Traumwohnung, die keine Wünsche offenlässt. Eine großzügige Diele empfängt Sie mit ausreichend Platz für Garderobe und Stauraum und öffnet den Weg in wunderbares Wohlfühlambiente. Der offen gestaltete Wohn- und Essbereich begeistert mit Großzügigkeit und umlaufenden Fenstern für einen schönen Lichteinfall. Von hier aus gelangen Sie direkt auf die herrliche Dachterrasse in südlicher Ausrichtung. Auch vom Schlafzimmer und Kinderzimmer genießt man die Nähe zur Natur: Beide Räume bieten direkten Zugang zu einem weiteren Freisitz mit Blick auf eine idyllische Streuobstwiese. Zwei stilvolle Tageslichtbäder mit bodengleicher Dusche sorgen für entspannte Wellness-Momente. Auf knapp 93 m² Wohnfläche verbindet sich durchdachte Funktionalität mit einer offenen, einladenden Atmosphäre. EINMALIGE CHANCE - OBJEKTHIGHLIGHTS:*ABSOLUTE RUHE MITTEN IN DER STADT: Zentrale Lage in München-Moosach, großzügige Abstände, perfekte Infrastruktur, U-Bahn in unmittelbarer Nähe.*TOP PREIS-LEISTUNG: Äußerst attraktive Kaufpreise, beste Grundriss-, Bau- und Lagequalitäten - ein Vergleich lohnt sich!*ENERGIE-KONZEPT: Autark von Öl & Gas: Grundwasser-Wärmepumpe kombiniert mit Photovoltaik = niedrige Nebenkosten.*QUALITÄTS-NEUBAU: Entscheiden Sie sich jetzt für die Zukunft! Unsere "StadtOase" bietet zeitgemäßes Design und modernste, energieeffiziente Technologien, die viel Geld sparen. Schluss mit Kompromissen - hier entscheiden Sie richtig.*EIGENE STREUOBSTWIESE: Herrliche Oase & Erholung direkt vor der Haustüre*KUTTER - IHR STARKER BAU-PARTNER: Fast 100-jährige Geschichte, über 2.000 Mitarbeiter - Sicherheit und Qualität beim Kauf von einem etablierten BauunternehmenÄhnliche Angebote
So funktioniert es
- Alle neuen Anzeigen matchen wir kostenlos mit Deinen Suchparametern.
- Passende Angebote senden wir Dir in einer E-Mail pro Tag.
- Du kannst auch verschiedene Suchen anlegen und Dich jederzeit abmelden. Mehr dazu




