Objektdaten
Objektbeschreibung
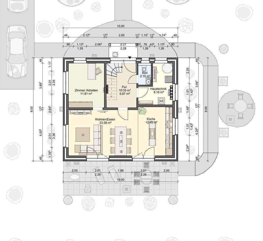
Zum Verkauf steht ein ca. 447 m² großes Grundstück in bevorzugter Lage von Hamburg-Poppenbüttel. Geplant ist hier der Neubau eines modernen Einfamilienhauses mit einer Wohnfläche von ca. 125 m² – perfekt, um Ihren Wohntraum in einem der begehrtesten Stadtteile Hamburgs zu verwirklichen. Da sich das Projekt aktuell noch in der Planungsphase befindet, haben Sie die besondere Gelegenheit, Ihre eigenen Vorstellungen in die Gestaltung einfließen zu lassen. Ob bei der Raumaufteilung, einer möglichen Erweiterung der Wohnfläche oder individuellen Grundstücksanpassungen – wir berücksichtigen Ihre Wünsche und entwickeln gemeinsam mit Ihnen Ihr maßgeschneidertes Zuhause. Der Preis für Haus inkl. Grundstück beträgt € 694.000, – zzgl. Baunebenkosten. Das Grundstück wird ausschließlich in Verbindung mit einer Baubindung verkauft. Eine Besichtigung von außen ist jederzeit möglich; für eine Begehung vor Ort vereinbaren wir gerne einen persönlichen Termin mit Ihnen. Als erfahrener Baupartner mit über 1.000 gebauten und übergebenen Häusern stehen wir Ihnen zuverlässig von der Planung bis zur Schlüsselübergabe zur Seite. Je früher Sie sich entscheiden, desto größer ist Ihr Spielraum bei der Umsetzung Ihrer individuellen Wünsche – von der Ausstattung bis hin zu besonderen Architekturdetails.Ähnliche Angebote
So funktioniert es
- Alle neuen Anzeigen matchen wir kostenlos mit Deinen Suchparametern.
- Passende Angebote senden wir Dir in einer E-Mail pro Tag.
- Du kannst auch verschiedene Suchen anlegen und Dich jederzeit abmelden. Mehr dazu




