Objektdaten
Objektbeschreibung
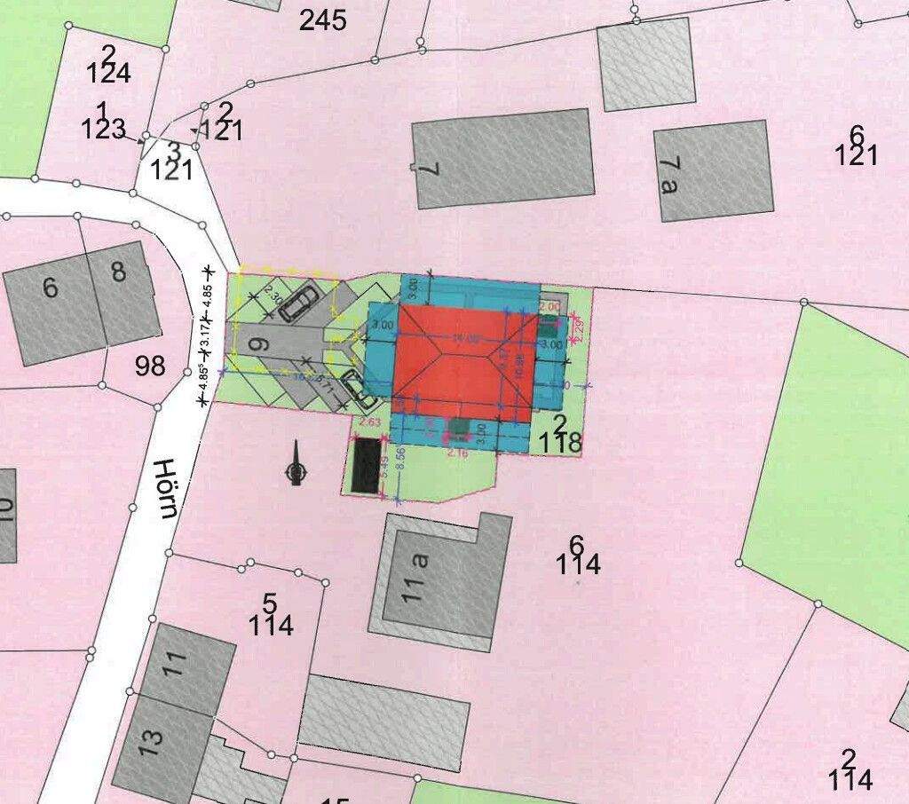
Dieses attraktive Baugrundstück bietet mit einer Fläche von 644 m² ideale Voraussetzungen für Ihr Neubauprojekt. Bereits genehmigt ist die Errichtung eines modernen Mehrfamilienhauses mit vier Wohneinheiten - eine perfekte Investitionsmöglichkeit in gefragter Lage. Aber auch ein Bau eines Einfamilienhauses oder Zweifamilienhauses wäre denkbar.Geplant sind zwei komfortable Erdgeschosswohnungen mit jeweils ca. 58 m² Wohnfläche sowie zwei gut geschnittene Obergeschosswohnungen mit jeweils ca. 49 m². Das Gebäude darf mit zwei Vollgeschossen realisiert werden.Besonders interessant für Kapitalanleger: Die Obergeschosswohnungen sind zur Ferienvermietung zugelassen, während die Erdgeschosswohnungen für eine dauerhafte Vermietung vorgesehen sind. So lässt sich eine attraktive Kombination aus stabilen Mieteinnahmen und lukrativer Ferienvermietung erzielen.Ein weiteres Highlight ist die hervorragende Lage in unmittelbarer Nähe zum Strand Hohenfelde - ein starkes Argument sowohl für Feriengäste als auch für langfristige Mieter.Ähnliche Angebote
So funktioniert es
- Alle neuen Anzeigen matchen wir kostenlos mit Deinen Suchparametern.
- Passende Angebote senden wir Dir in einer E-Mail pro Tag.
- Du kannst auch verschiedene Suchen anlegen und Dich jederzeit abmelden. Mehr dazu




