Einzigartiges 53 m² Apartment im grünen München-Untermenzing. Mit stilvoller Inneneinrichtung und voll ausgestatteter Küchenzeile, ideal für Selbstversorger. Genießen Sie Ruhe am Flusslauf der Würm auf dem Balkon oder Terrasse.
Objektdaten
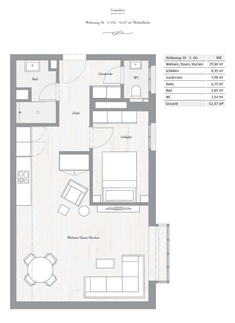
Objektbeschreibung
Superior Galerie Apartment – 53 m² Möbliertes Wohnen im Grünen an der Würm Dieses Apartment auf zwei Ebenen bietet großzügige Raumaufteilung und stilvolle Möblierung. Moderne Innenausstattung, elegante Sitz- und Essbereiche sowie ein gemütlicher Schlafbereich mit King-Size-Bett machen es zur perfekten Kombination aus Funktionalität und Komfort. Die voll ausgestattete Küchenzeile ist ideal für Selbstversorger, während Balkon oder Terrasse entspannte Stunden im Freien ermöglichen. Von Ihrem Balkon oder Ihrer Terrasse genießen Sie den Blick ins Grüne und auf die idyllische Würm. Dank der ruhigen Lage im Landschaftsschutzgebiet wohnen Sie mitten in der Natur – und erreichen dennoch in wenigen Minuten die Münchner Innenstadt. Inklusivleistungen: Strom, Heizung, Wasser, Highspeed-WLAN. Der wöchentliche Wechsel von Bettwäsche und Handtüchern & die Reinigung ist auf Wunsch buchbar. Optional stehen Ihnen Tiefgaragen- oder Außenstellplätze, Housekeeping-Service sowie Frühstück im Hotel zur Verfügung. Die moderne Einbauküche ist hochwertig ausgestattet und fügt sich perfekt in das stilvolle Ambiente des Apartments ein – ideal zum entspannten Kochen oder für den schnellen Espresso am Morgen. Verfügbar ab Mai 2026 – Mindestmietzeit ab 4 Monate | kürzere Mietzeit auf Anfrage möglich | bis 2 Personen Balkon, Terrasse, Garten, Einbauküche, Parkett, Teppichboden, Fliesen Bemerkungen: Die offene Einbauküche ist mit hochwertigen Geräten ausgestattet und lädt zum Kochen und Genießen ein. WLAN, Smart-TV sowie praktische Einbauten sorgen für zeitgemäßen Komfort. Balkon oder Terrasse mit Blick ins Grüne runden das exklusive Wohnkonzept ab.Energieträger: Gas
Für Haustiere sind die Apartments nicht geeignet.
Makleranfragen nicht erwünscht. Nach § 7 UWG sind unaufgeforderte Kontaktaufnahmen durch Makler ohne ausdrückliche Einwilligung des Empfängers verboten!
ohne-makler (OM) ist weder Anbieter noch Vermittler der Immobilie. OM betreibt eine Plattform für Immobilieneigentümer, die unter anderem die gleichzeitige Veröffentlichung einzelner Inserate auf mehreren Immobilienportalen ermöglicht. Die Inhalte dieser Inserate werden ausschließlich von Dritten verantwortet. Für die Richtigkeit, Vollständigkeit oder Rechtmäßigkeit der Angaben übernimmt OM keine Haftung. Hinweise auf mögliche Rechtsverstöße können jederzeit gemeldet werden und werden nach Prüfung umgehend bearbeitet.
Ähnliche Angebote
So funktioniert es
- Alle neuen Anzeigen matchen wir kostenlos mit Deinen Suchparametern.
- Passende Angebote senden wir Dir in einer E-Mail pro Tag.
- Du kannst auch verschiedene Suchen anlegen und Dich jederzeit abmelden. Mehr dazu





