Warmmiete 1.850 €
Zimmer 6
Größe 145 m²
91282 Betzenstein
Objektdaten
Veröffentlicht am: 3. März 2026
Frei ab: 23. Februar 2026
Kaltmiete 1.850 €
Energieausweis: Liegt bei der Besichtigung vor
Danke! Bitte bestätige Deine E-Mail-Adresse – wir haben Dir soeben eine Mail geschickt.
Es gab ein Problem beim Absenden. Bitte versuche es erneut.
Bitte bestätige Deine E-Mail-Adresse, um Updates zu erhalten.
Objektbeschreibung
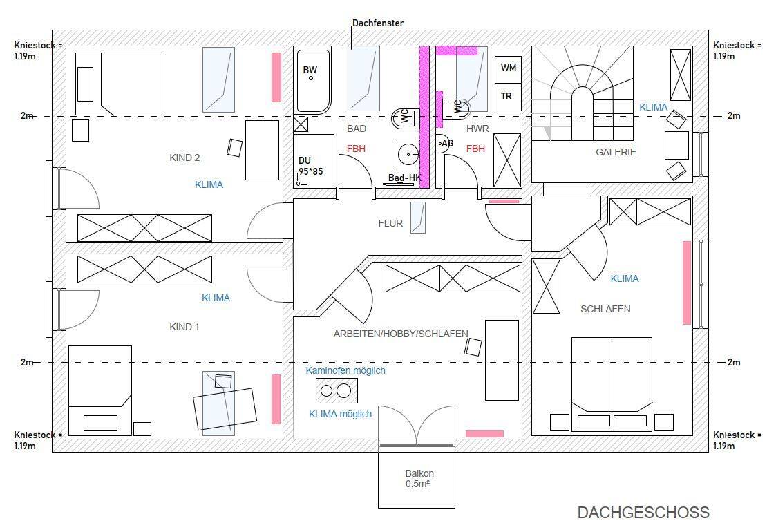
[URL="https://wunderflats.com/de/l/59fc8d878797819c7fa1e21a?utm_source=immowelt.de&utm_medium=partner&utm_campaign=demand&utm_content=DE"]Eine vollständige Beschreibung finden Sie bei wunderflats.com[/URL][URL="https://wunderflats.com/en/l/59fc8d878797819c7fa1e21a?utm_source=immowelt.de&utm_medium=referral&utm_campaign=standard"]Click here for a detailed description of the apartment in English.[/URL] Helles und gemütliches Landhaus mit grossem Garten und viel Platz für Familie und Freunde. Am Tor zur Fränkischen Schweiz ist die Immobilie perfekt gelegen zum Wandern, Motorradfahren, Klettern oder im Winter für den Ski-Langlauf. Nicht nur der gemütliche und ruhige Garten laden zum entsapnnen ein, auch die großzügige Terrasse bittet eine herliche Aussicht und genug Platz für alle. Ein überdachter Grillplatz, sowie Schaukel und Sitzmöglichkeiten bieten Schutz bei unerwartetem Sommerregen und retten jede Gartenfeier.Die Zimmer sind groszügig und Hell. Das Master-Schlafzimmer (1OG) besitzt einen eigenen Balkon und einen großen Kleiderschrank (teilweise begehbar). Gegen über befindet sich das große Bad mit Wellnesoase (Wirpoolbadewanne für 2 Personen und eine Dampfsauna-Dusche für 2 Personen) und reichlich Platz zum entspannen. 2 weitere Schlaf/Arbeits/Wohnräume runden das erste OG ab. Jedes Stockwerk besitzt ein eigenes WC/Bad. Die Galerie im DG bietet viel Platz, tollen Ausblick und ausreichend Rückzugsmöglichkeiten mit eigenes Bad, große Schränke, gemütlichen Arbeitsplatz mit Aussicht und bequeme Schlafmöglichkeit. Das EG ist zu 80% ein großes offenes und helles Wohn- und Esszimmer mit Zugang zum großen Balkon und Garten, großen Kamien (verglast) und viele Sitz und Liegemöglichkeiten, die dazu einladen die Aussicht zu genießen. Die funktionelle Küche ist direkt angeschlossen und perfekt ausgestattet.2 Stellplätze inclusive, optional auch Garage.
So funktioniert es
- Alle neuen Anzeigen matchen wir kostenlos mit Deinen Suchparametern.
- Passende Angebote senden wir Dir in einer E-Mail pro Tag.
- Du kannst auch verschiedene Suchen anlegen und Dich jederzeit abmelden. Mehr dazu
Wir haben soeben eine E-Mail mit Deinem Suchauftrag an Dich geschickt. – Klicke in dieser Mail auf den Bestätigungslink und schon geht's los. Prüfe ggf. auch Deinen Spamordner.
Es gab ein Problem beim Absenden Deiner E-Mail-Adresse. Bitte versuche es erneut.
WARNUNG: Bitte bestätige Deine E-Mail-Adresse, um regelmäßige Updates zu erhalten.