Kaufpreis 550.000 €
Zimmer 6
Größe 226 m²
75242 Neuhausen
Objektdaten
Veröffentlicht am: 3. März 2026
Energieausweis: Liegt bei der Besichtigung vor
Danke! Bitte bestätige Deine E-Mail-Adresse – wir haben Dir soeben eine Mail geschickt.
Es gab ein Problem beim Absenden. Bitte versuche es erneut.
Bitte bestätige Deine E-Mail-Adresse, um Updates zu erhalten.
Objektbeschreibung
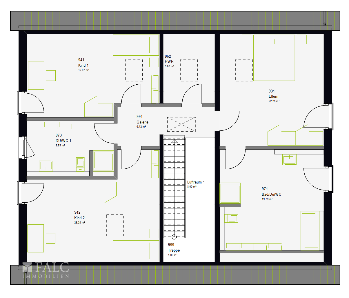
Mehrgenerationenhaus - Gemeinsam leben und eigenständig wohnen.Dieses durchdacht geplante Mehrgenerationenhaus vereint Großzügigkeit, Energieeffizienz und Flexibilität in idealer Weise für Familien, die gemeinsam mit Eltern oder Schwiegereltern unter einem Dach leben möchten.Die Gesamtwohnfläche von 226,46m² teilt sich wie folgt auf:Hauptwohneinheit: 175,46 m² über zwei StockwerkeSeparate Wohneinheit: 51 m² im Erdgeschoss mit eigenem EingangDie Hauptwohneinheit mit 175,46 m² bietet großzügige Wohn- und Essbereiche, mehrere Schlafzimmer für Eltern und Kinder sowie flexible Räume für Homeoffice, Hobby oder Gäste. Hier entfaltet sich das Familienleben mit ausreichend Platz für jedes Familienmitglied. Die Raumstruktur ermöglicht sowohl gemeinschaftliche Bereiche als auch individuelle Rückzugsmöglichkeiten.Die Einliegerwohnung eignet sich ideal für Großeltern, die die Nähe zu ihren Kindern und Enkeln genießen möchten und gleichzeitig ihre Eigenständigkeit bewahren wollen. Das Konzept ermöglicht ein harmonisches Miteinander mit klarer Privatsphäre und Unabhängigkeit.Als Niedrigenergiehaus überzeugt die Immobilie durch:- Reduzierte Energiekosten- Zeitgemäße Bauweise- Hohe Dämmstandards- Nachhaltige WertstabilitätGerade bei einem Mehrpersonenhaushalt wirkt sich die energieeffiziente Bauweise positiv auf die laufenden Kosten aus und bietet langfristige Planungssicherheit.Ein besonderer Vorteil liegt in der langfristigen Flexibilität der zweiten Wohneinheit. Sollte diese zu einem späteren Zeitpunkt nicht mehr durch die Großeltern genutzt werden, bestehen folgende Optionen:- Wohnraum für heranwachsende oder erwachsene Kinder- Separater Homeoffice- oder Praxisbereich- Vermietung zur Generierung zusätzlicher Einnahmen- Nutzung für Pflegekraft oder BetreuungspersonDas Mehrgenerationenhaus bietet somit nicht nur ein Zuhause für heute, sondern ein nachhaltiges Wohnkonzept für verschiedene Lebensphasen.Mehrgenerationenwohnen schafft:- Gemeinsame Kinderbetreuung im Alltag- Gegenseitige Unterstützung innerhalb der Familie- Emotionale Nähe und Sicherheit- Entlastung bei Pflege- oder Betreuungsbedarf- Stärkung familiärer BindungenDieses Haus richtet sich an Familien, die Verantwortung füreinander übernehmen möchten, ohne auf Wohnqualität, Komfort und Selbstbestimmung zu verzichten. Die Kombination aus 175,46 m² Hauptwohneinheit und 51 m² separater Wohneinheit bietet ein zukunftsfähiges, energieeffizientes und wirtschaftlich durchdachtes Wohnkonzept mit langfristiger Perspektive.
So funktioniert es
- Alle neuen Anzeigen matchen wir kostenlos mit Deinen Suchparametern.
- Passende Angebote senden wir Dir in einer E-Mail pro Tag.
- Du kannst auch verschiedene Suchen anlegen und Dich jederzeit abmelden. Mehr dazu
Wir haben soeben eine E-Mail mit Deinem Suchauftrag an Dich geschickt. – Klicke in dieser Mail auf den Bestätigungslink und schon geht's los. Prüfe ggf. auch Deinen Spamordner.
Es gab ein Problem beim Absenden Deiner E-Mail-Adresse. Bitte versuche es erneut.
WARNUNG: Bitte bestätige Deine E-Mail-Adresse, um regelmäßige Updates zu erhalten.