Objektdaten
Objektbeschreibung
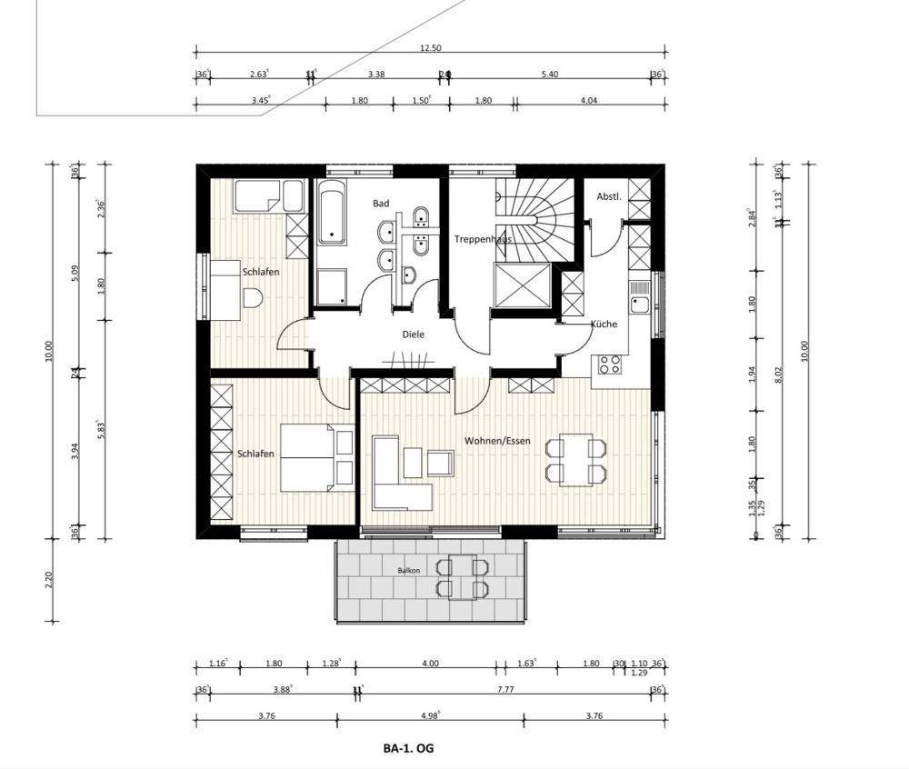
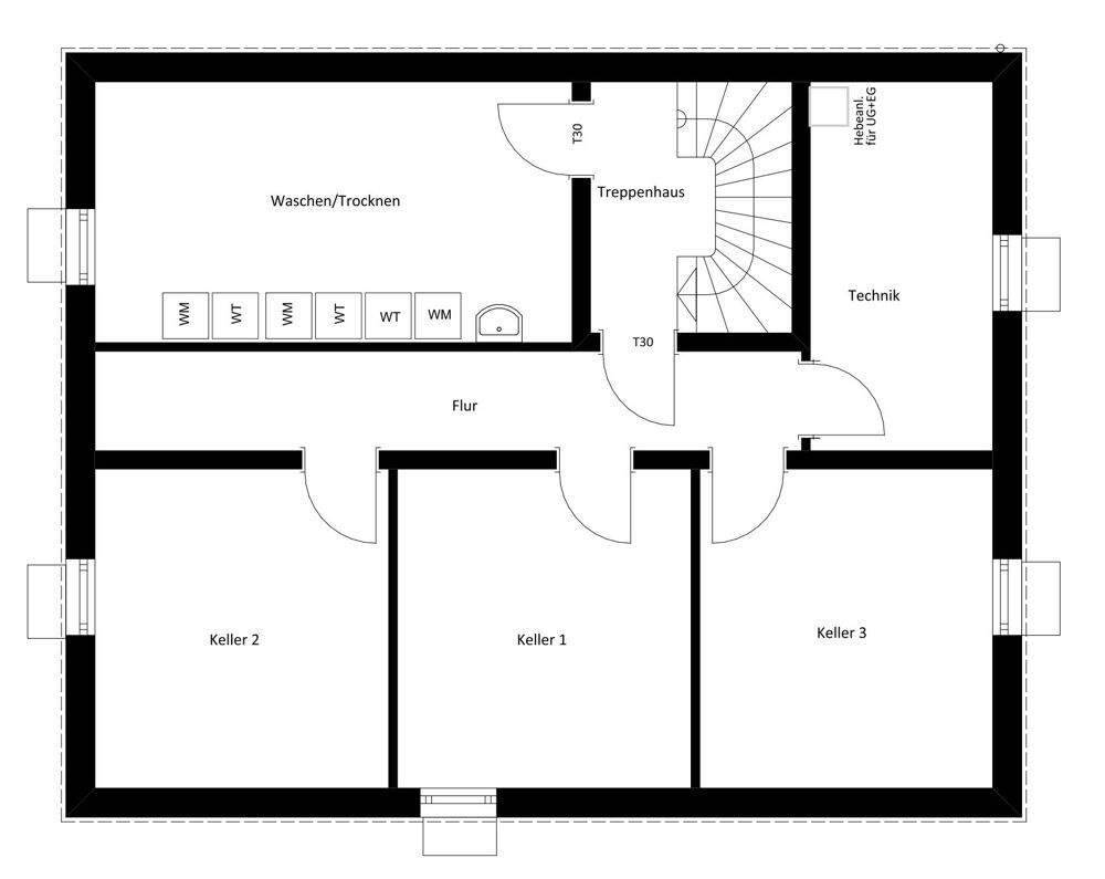
MODERN und ZEITLOS zeigt sich die Architektur dieses NEUBAU - MEHRFAMILIENHAUES mit nur DREI Wohneinheiten. Die Planung des heimischen Architekten und zugleich Bauträgers zeigt FUNKTIONELLE GRUNDRISSE und bietet mit STILVOLLEM WOHNAMBIENTE einen HOCHWERTIGEN LEBENSRAUM! ZUKUNFTSORIENTIERT zeigt sich die ENERGIEEFFIZIENTE Heiztechnik. Eine LUFT-WÄRMEPUMPE versorgt die Fußbodenheizung und somit das angenehme Wohnklima.Die zur Verfügung stehende 3 Zimmer Wohnung im Obergeschoss bietet eine Wohnflächen von ca. 92,60 m² und zeigt folgende Raumaufteilung: * Flur* Tageslichtbad mit Dusche und Badewanne* sep. WC* Schlafen I* Schlafen II* Großer Wohn-/Ess-Bereich mit offener Küche* Balkon * Abstell-/Hauswirtschaftsraum* großer KellerraumZur Wohnung gehört eine Stellplatz im Carport und hub KFZ-AUSSENSTELLPLATZ. Kaufpreis Carportplatz: 20.000,00 EUR. Kaufpreis KFZ-Aussenstellplatz: 10.000,00 EUR. Der Hausgemeinschaft steht ein Wasch- und Trockenraum sowie ein bequem zugänglicher Fahrradraum zur Verfügung.Ähnliche Angebote
So funktioniert es
- Alle neuen Anzeigen matchen wir kostenlos mit Deinen Suchparametern.
- Passende Angebote senden wir Dir in einer E-Mail pro Tag.
- Du kannst auch verschiedene Suchen anlegen und Dich jederzeit abmelden. Mehr dazu




