Objektdaten
Objektbeschreibung
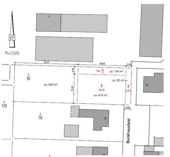
Zum Verkauf steht ein attraktives, ca. 740 m² großes Baugrundstück in Sehnde-Rethmar. Das Besondere: Hier bauen Sie nicht in einem kahlen Neubaugebiet "auf der grünen Wiese", sondern in einem gewachsenen, liebevoll begrünten Wohngebiet. Das Grundstück liegt am Ende einer ruhigen Sackgasse (Backhausfeld), was ein Höchstmaß an Privatsphäre und Sicherheit garantiert.Ein positiver Bauvorbescheid der Region Hannover vom 27.01.2026 liegt bereits vor. Damit genießen Sie volle Planungssicherheit für ein freistehendes Einzelhaus in 1,7-geschossiger Massivbauweise mit hochwertiger KlinkerfassadeSo funktioniert es
- Alle neuen Anzeigen matchen wir kostenlos mit Deinen Suchparametern.
- Passende Angebote senden wir Dir in einer E-Mail pro Tag.
- Du kannst auch verschiedene Suchen anlegen und Dich jederzeit abmelden. Mehr dazu




