Objektdaten
Objektbeschreibung
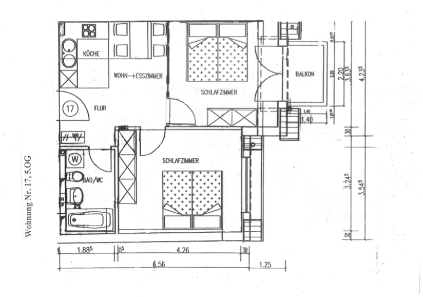
Diese helle und gut geschnittene 3-Raum-Wohnung befindet sich im Dachgeschoss eines gepflegten Mehrfamilienhauses im beliebten Stadtteil Leipzig-Gohlis.Beim Betreten der Wohnung empfängt Sie ein großzügiger Flur mit ausreichend Platz für eine komfortable Garderobe. Von hier aus gelangen Sie in den lichtdurchfluteten Wohnbereich, dessen Fenster für eine angenehme und freundliche Atmosphäre sorgen. Der Wohnraum bietet genügend Platz für eine gemütliche Sofa-Ecke sowie einen Essbereich.Die Küche schließt direkt an den Wohnbereich an und ist mit einer großzügigen Einbauküche ausgestattet, die viel Stauraum und Arbeitsfläche bietet. Die Einbauküche ist im Mietpreis enthalten.Vom Flur aus erreichen Sie außerdem das geräumige Schlafzimmer sowie ein weiteres Zimmer, das sich ideal als Kinder-, Arbeits- oder zusätzliches Schlafzimmer nutzen lässt. Beide Räume sind hell und praktisch geschnitten.Das Badezimmer verfügt über eine Badewanne, ist freundlich gestaltet und bietet ausreichend Platz für alles Notwendige. Ein Waschmaschinenanschluss befindet sich im Keller.Hinweis: Als Kaution werden 3 Kaltmieten hinterlegt. Dessen Zahlung hat 10 Tage nach Mietvertragsunterzeichnung zu erfolgen.Ähnliche Angebote
So funktioniert es
- Alle neuen Anzeigen matchen wir kostenlos mit Deinen Suchparametern.
- Passende Angebote senden wir Dir in einer E-Mail pro Tag.
- Du kannst auch verschiedene Suchen anlegen und Dich jederzeit abmelden. Mehr dazu





