Baugrundstück, ohne Bauszwang in hervorragender Lage bei Altdorf, Landkreis Landshut – zu verkaufen

Kaufpreis 365.000 €
84032 Altdorf

Objektdaten

Veröffentlicht am: 5. März 2026
  • Objektbeschreibung

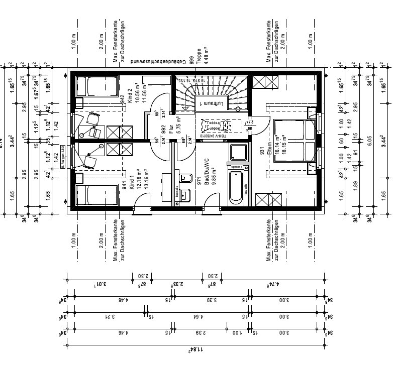
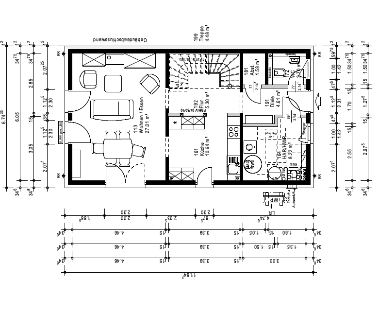
    Dieses attraktive Baugrundstück in ruhiger und begehrter Lage bei Altdorf bietet auf ca. 690 m² ideale Voraussetzungen für die Verwirklichung Ihres individuellen Bauvorhabens. Ob Einfamilienhaus oder Doppelhaushälfte - hier lassen sich Wohnträume in einer naturnahen Umgebung mit gleichzeitig hervorragender Anbindung realisieren.Das Grundstück liegt in einem Dorfgebiet, eine Ortsabrundungssatzung ist vorhanden. Im Grundbuch sind keine Lasten, Beschränkungen oder Erbbaurechte eingetragen. Das Grundstück ist teilerschlossen und unterliegt keinem Bauzwang - Sie entscheiden also selbst, wann und wie Sie Ihr Projekt umsetzen möchten.Das Grundstück steht ab sofort für den Käufer zur Verfügung und kann kurzfristig bebaut werden.Optionales Hauskonzept:Auf Wunsch können wir Ihnen auf diesem Grundstück bereits zwei moderne Doppelhaushälften mit jeweils ca. 127 m² Wohnfläche anbieten. Diese werden in hochwertiger Bauweise mit moderner Technik und gehobener Ausstattung realisiert - inklusive Wärmepumpe, Echtholztreppe, 3-fach isolierten Fenstern, Wohnraumbelüftung mit Wärmerückgewinnung und vielen weiteren Ausstattungshighlights.Ein Grundstück mit Zukunft - perfekt für Bauherren, die Freiraum, Lage und Qualität verbinden möchten.Wir freuen uns, Ihnen dieses attraktive Baugrundstück sowie die passenden Hauskonzepte in einem persönlichen Gespräch näher vorstellen zu dürfen.Ausstattung:- sofort verfügbar- Grundstücksfläche: 690 m²- teilerschlossen* Optional mit Doppelhaushälfte mit folgender Ausstattung:ab 350.000 € * je nach Ausstattung inkl. Einzelgarage- Inklusiv-Leistungen:- Wohnfläche ca. 127 m²- 4 Zimmer- Außenmasse: 6.59 m x 11.84 m- Architektenleistung- Bau-Sicherheitspaket- Heizungsanlage- und Elektropaket- Dreifach verglaste Fenster inkl. Aluminiumrollläden- Luft-Wasser-Wärmepumpe- Echtholztreppe- Bodenbeläge und Tapeten- Luftdichtigkeitsmessung- Lichte Raumhöhe von 2,75 m- Dämm- und Beplankungspaket- Haustechnik inklusive Rohrleitungen- Kontrollierte Be- und Entlüftungsanlage mit Wärmerückgewinnung- Sanitärobjekte- Innentüren, Zargen und Fliesen- Steckdosen
    Nach oben scrollen