AIGNER – Renovierungsbedürftiges Juwel in Haidhausen
Kaufpreis 750.000 €
Zimmer 3
Größe 102 m²
81541 München
Objektdaten
Veröffentlicht am: 6. März 2026
Baujahr: 1962
Energieausweis: Liegt bei der Besichtigung vor
Danke! Bitte bestätige Deine E-Mail-Adresse – wir haben Dir soeben eine Mail geschickt.
Es gab ein Problem beim Absenden. Bitte versuche es erneut.
Bitte bestätige Deine E-Mail-Adresse, um Updates zu erhalten.
Objektbeschreibung
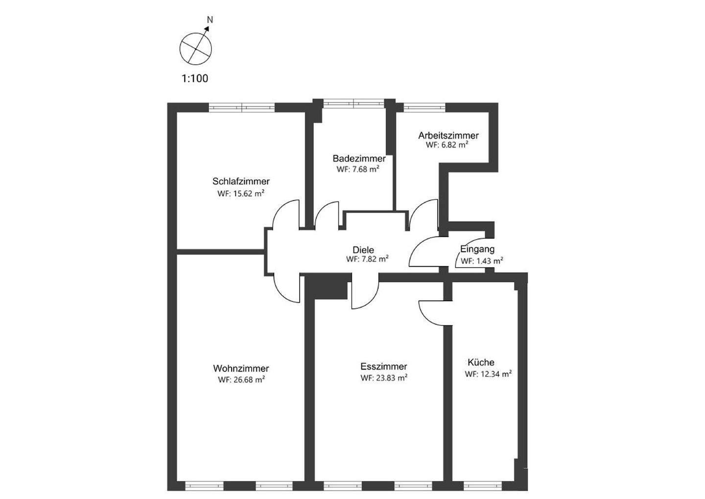
Diese charmante 3,5-Zimmer-Wohnung mit einer Wohnfläche von 102,22 m² befindet sich in einem gepflegten Mehrfamilienhaus aus dem Jahr 1962 und überzeugt durch ihre durchdachte Raumaufteilung. Große Fenster schaffen ein helles, großzügiges Wohngefühl und unterstreichen den besonderen Charakter der Immobilie.Bereits beim Betreten empfängt Sie ein weitläufiger Flur mit integriertem Einbauschrank, von dem aus alle Räume bequem erreichbar sind. Das Raumangebot umfasst ein großzügiges Wohnzimmer, eine separate Küche mit angrenzendem Esszimmer, ein Schlafzimmer sowie ein Arbeitszimmer. Dank des cleveren Grundrisses lässt sich das Esszimmer in ein Wohnzimmer und das Wohnzimmer bei Bedarf in ein weiteres Schlafzimmer umwandeln und bietet somit flexible Nutzungsmöglichkeiten für Paare, kleine Familien oder das Arbeiten im Homeoffice. Küche und Badezimmer sind gefliest, während in den übrigen Räumen klassisches Stäbchenparkett für eine warme Wohnatmosphäre sorgt. Die Wohnung ist renovierungsbedürftig, bietet jedoch eine hervorragende Grundlage, um mit überschaubarem Aufwand ein individuelles und stilvolles Zuhause zu schaffen. Eine Immobilie mit viel Potenzial und viel Raum für eigene Ideen, ideal für alle, die ihren Wohntraum nach persönlichen Vorstellungen verwirklichen möchten.
Alle neuen Anzeigen matchen wir kostenlos mit Deinen Suchparametern.
Passende Angebote senden wir Dir in einer E-Mail pro Tag.
Du kannst auch verschiedene Suchen anlegen und Dich jederzeit abmelden. Mehr dazu
Wir haben soeben eine E-Mail mit Deinem Suchauftrag an Dich geschickt. – Klicke in dieser Mail auf den Bestätigungslink und schon geht's los. Prüfe ggf. auch Deinen Spamordner.
Es gab ein Problem beim Absenden Deiner E-Mail-Adresse. Bitte versuche es erneut.
WARNUNG: Bitte bestätige Deine E-Mail-Adresse, um regelmäßige Updates zu erhalten.
Sie sehen gerade einen Platzhalterinhalt von Turnstile. Um auf den eigentlichen Inhalt zuzugreifen, klicken Sie auf die Schaltfläche unten. Bitte beachten Sie, dass dabei Daten an Drittanbieter weitergegeben werden.
Sie sehen gerade einen Platzhalterinhalt von Vimeo. Um auf den eigentlichen Inhalt zuzugreifen, klicken Sie auf die Schaltfläche unten. Bitte beachten Sie, dass dabei Daten an Drittanbieter weitergegeben werden.
Sie sehen gerade einen Platzhalterinhalt von YouTube. Um auf den eigentlichen Inhalt zuzugreifen, klicken Sie auf die Schaltfläche unten. Bitte beachten Sie, dass dabei Daten an Drittanbieter weitergegeben werden.
Sie sehen gerade einen Platzhalterinhalt von Turnstile. Um auf den eigentlichen Inhalt zuzugreifen, klicken Sie auf die Schaltfläche unten. Bitte beachten Sie, dass dabei Daten an Drittanbieter weitergegeben werden.