Kaufpreis 1.225.000 €
Zimmer 4
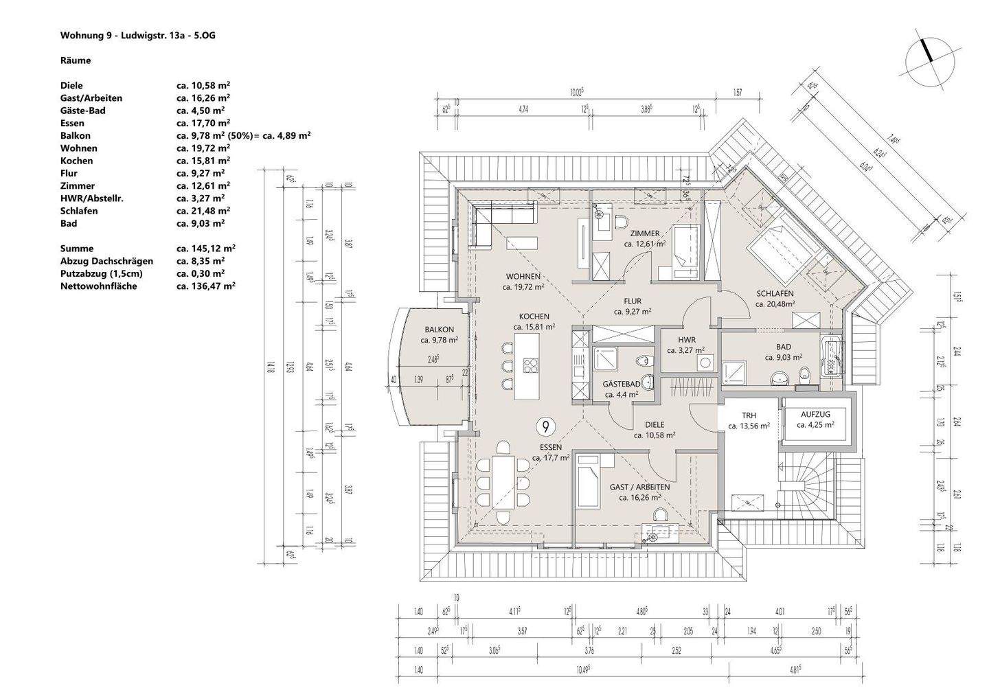
Größe 136 m²
61231 Bad Nauheim
Objektdaten
Veröffentlicht am: 6. März 2026
Energieausweis: Liegt bei der Besichtigung vor
Danke! Bitte bestätige Deine E-Mail-Adresse – wir haben Dir soeben eine Mail geschickt.
Es gab ein Problem beim Absenden. Bitte versuche es erneut.
Bitte bestätige Deine E-Mail-Adresse, um Updates zu erhalten.
Objektbeschreibung
In einer der exklusivsten und renommiertesten Wohnlagen Bad Nauheims, unmittelbar gegenüber dem Sprudelhof, direkt angrenzend an den historischen Kurpark sowie fußläufiger Entfernung zur Fußgängerzone, entsteht mit "Wohnen am Sprudelhof II" ein außergewöhnliches Wohnensemble für höchste Ansprüche. Die besondere Mikrolage zählt zu den repräsentativsten Adressen der Stadt und verbindet architektonisch geprägtes Umfeld, innerstädtischen Komfort und naturnahe Erholung auf seltene Weise.Das Projekt umfasst drei architektonisch aufeinander abgestimmte Gebäude, die gemeinsam ein hochwertiges und stimmiges Wohnensemble mit insgesamt 30 Wohneinheiten bilden. Die beiden vorderen Gebäude werden neu errichtet und beherbergen jeweils neun Wohnungen im Vorderhaus sowie sieben Wohnungen im mittleren Gebäude. Das ehemalige Hotel "Brunnenhof" wird im rückwärtigen Bereich komplett revitalisiert und ergänzt das Ensemble im neuen Look um weitere 16 Wohneinheiten.Das Vorderhaus (Ludwigstraße 13a) setzt dabei einen besonderen städtebaulichen Akzent. In enger Abstimmung mit Stadtplanung und Denkmalamt erhält die Fassade bis zum vierten Obergeschoss eine hochwertige Verblendung mit Klinker-Riemen, die dem Gebäude eine repräsentative, langlebige und dem Standort angemessene Präsenz verleiht.Das mittlere Gebäude (Ludwigstraße 13b) steht dem Vorderhaus in seiner Wertigkeit in nichts nach. Mit einer modernen, eleganten Gestaltung, ausgesuchten Materialien und ausgewogenen Proportionen fügt es sich harmonisch in das Ensemble ein und überzeugt durch seine klare, zeitgemäße Wohnqualität.Der ehemalige "Brunnenhof" ergänzt das Ensemble als eigenständiger Gebäudeteil mit besonderem Charakter und erweitert das Projekt um zusätzliche, attraktive Wohnformen innerhalb des Gesamtkonzepts.Die Wohnungen überzeugen mit durchdachten Grundrissen und einem stimmigen Raumkonzept mit lichtdurchfluteten Wohn-, Ess- und Kochbereichen, die ein offenes und zugleich hochwertiges Wohngefühl vermitteln. Ausgewählte Materialien, edle Parkettböden und stilvolle Tageslichtbäder unterstreichen den gehobenen Ausstattungsanspruch und schaffen ein elegantes, zeitloses Ambiente. Großzügige Fensterflächen mit moderner Verschattung lassen viel Tageslicht in die Räume und verbinden Innen- und Außenraum auf sehr angenehme Weise.Architektonisch anspruchsvoll gestaltete Balkone, Terrassen und - teilweise - private Gartenanteile erweitern den Wohnraum ins Freie. In den oberen Geschossen eröffnen sich weitläufige Ausblicke über die Dächer der Stadt, unter anderem auch in Richtung Johannisberg. Einzelne, besonders exklusive Wohnungen erstrecken sich über eine gesamte Etage und bieten ein hohes Maß an Privatsphäre, Großzügigkeit und Wohnkomfort.Ein zukunftsorientiertes Energiekonzept, moderne Haustechnik und eine nachhaltige Bauweise sind integraler Bestandteil des Projekts. Sie verbinden zeitgemäßen Wohnkomfort mit langfristiger Effizienz und Werthaltigkeit. Aufzüge, private Kellerräume sowie komfortable Stellplatzlösungen unterstreichen den hohen Gesamtanspruch.Auch für Kapitalanleger bietet das Projekt überzeugende Rahmenbedingungen. Die neu errichteten Wohneinheiten ermöglichen attraktive Steuervorteile durch die degressive Abschreibung (AfA) in Höhe von 5 % pro Jahr. Die exklusive Lage in Verbindung mit hochwertigen Wohnkonzepten bietet zugleich gute Voraussetzungen für eine nachhaltige Vermietbarkeit und einen langfristigen Vermögensaufbau. Ergänzend bestehen Fördermöglichkeiten, insbesondere in Form zinsvergünstigter Darlehen im Rahmen der Bundesförderung für effiziente Gebäude (BEG), beispielsweise über das KfW-Programm "Klimafreundlicher Neubau - Wohngebäude" (Kredit Nr. 297/298).Realisiert wird "Wohnen am Sprudelhof II" von einem renommierten Bauträger mit nahezu 30 Jahren Erfahrung und zahlreichen erfolgreich umgesetzten Projekten - vor allem in der Bad Nauheimer Innenstadt. Referenzen wie das benachbarte Projekt in der Ludwigstraße 11 sowie weitere besondere Projekte stehen für architektonische Qualität, Verlässlichkeit und ein feines Gespür für anspruchsvolle Lagen.Hinweis: Die genannten Förderprogramme stehen unter dem Vorbehalt der Verfügbarkeit von Bundesmitteln. Ein Rechtsanspruch auf Förderung besteht nicht.
So funktioniert es
- Alle neuen Anzeigen matchen wir kostenlos mit Deinen Suchparametern.
- Passende Angebote senden wir Dir in einer E-Mail pro Tag.
- Du kannst auch verschiedene Suchen anlegen und Dich jederzeit abmelden. Mehr dazu
Wir haben soeben eine E-Mail mit Deinem Suchauftrag an Dich geschickt. – Klicke in dieser Mail auf den Bestätigungslink und schon geht's los. Prüfe ggf. auch Deinen Spamordner.
Es gab ein Problem beim Absenden Deiner E-Mail-Adresse. Bitte versuche es erneut.
WARNUNG: Bitte bestätige Deine E-Mail-Adresse, um regelmäßige Updates zu erhalten.