Objektdaten
Objektbeschreibung
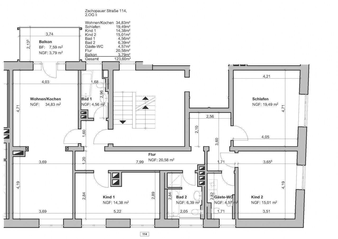
Erstbezug im Juli 2026 nach Sanierung - In 2026 wird das Objekt Zschopauer Straße 114 - 122 im Stadtteil Bernsdorf komplett saniert. Frisch renoviert und mit modernen Fußbodenbelägen und Fliesen wird diese geräumige 4-Raum-Wohnungen ausgestattet sein. Neue große Balkone mit einer Südausrichtung und einer PV-Anlage. Parkmöglichkeiten gibt es direkt vorm bzw. neben dem Gebäude. In nur wenigen Fußminuten erreicht man verschiedene Einkaufsmöglichkeiten sowie die öffentlichen Verkehrsmittel.Alle Bilder sind Vergleichsbilder aus anderen Wohnungen!Die angebotene Wohnung mieten Sie direkt vom Eigentümer mit Sitz in Chemnitz an.Sie haben Interesse? Dann nehmen Sie Kontakt mit uns auf!Unser freundliches Wohnberaterteam steht Ihnen gern telefonisch unter der 0371 4502-160 zur Verfügung.Ähnliche Angebote
So funktioniert es
- Alle neuen Anzeigen matchen wir kostenlos mit Deinen Suchparametern.
- Passende Angebote senden wir Dir in einer E-Mail pro Tag.
- Du kannst auch verschiedene Suchen anlegen und Dich jederzeit abmelden. Mehr dazu





