Objektdaten
Objektbeschreibung
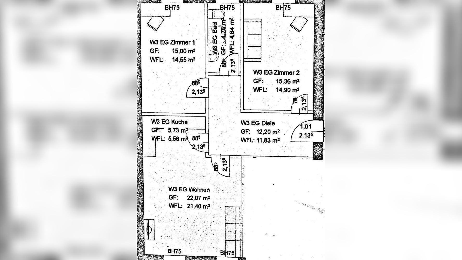
Dieses Mehrfamilienhaus befindet sich in Sagard, nur wenige Schritte entfernt von der historischen Parkanlage Sagard. Das beeindruckende Gründerzeithaus in dem sich diese Wohnung befindet, wurde aufwendig saniert.Ähnliche Angebote
So funktioniert es
- Alle neuen Anzeigen matchen wir kostenlos mit Deinen Suchparametern.
- Passende Angebote senden wir Dir in einer E-Mail pro Tag.
- Du kannst auch verschiedene Suchen anlegen und Dich jederzeit abmelden. Mehr dazu





