Objektdaten
Objektbeschreibung
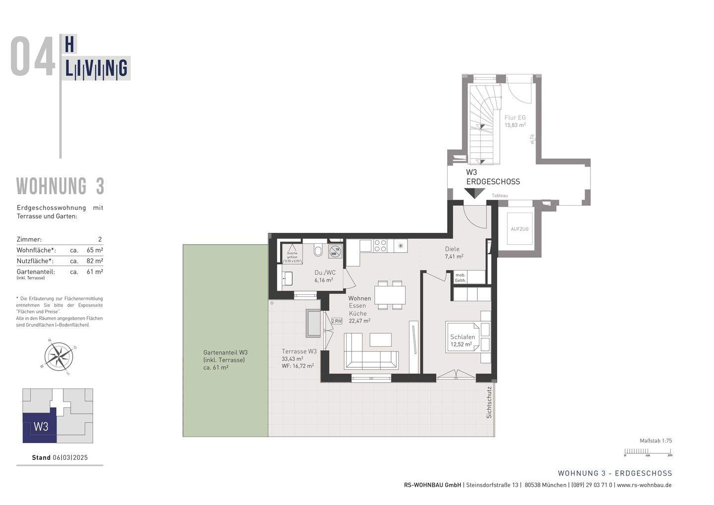
Objekthighlights:- energiesparende und wirtschaftliche Effizienzhäuser 40 mit Energieeffizienzklasse A+, QNG- hochwärmedämmende Massiv-Ziegelbauweise- umweltschonende und modernste Wärmepumpentechnologie- Fußbodenheizung mit Einzelraumsteuerung in allen Räumen- Treppenlauf mit ausgewähltem Granitbelag und Edelstahlhandlauf- hochbeständige und pflegeleichte Kunststofffenster mit hochwertiger Alu-Vorsatzschale, 3-fach - Wärmeschutzverglasung und Sicherheitsfenstern im EG- elektrische Rollläden an allen stehenden Fenstern- hochwertige Elektroausstattung mit CAT7 Verkabelung- Videosprechanlage- elegante Porzellan-Serie und formschöne Armaturen von namhaften Herstellern für die Bäder- komfortable, bodengleiche Duschen (sofern technisch realisierbar, gemäß Plan)- elegante Bodenbeläge (z.B. Eichenparkett oder Parkett nach eigener Wahl* in allen Wohn- und Schlafräumen)- exklusive großformatige Fliesen, frei wählbar*- großzügige Tiefgarage mit komfortablen Multiparksystemen mit hohem Einstellkomfort und Vorbereitung von Ladeinfrastruktur für Elektro-Mobilität - Sonderwünsche nach Absprache möglich* im Rahmen der in der Baubeschreibung festgelegten Richtpreise pro m². Die vollständige Baubeschreibung erhalten Sie gerne auf Anfrage.Ähnliche Angebote
So funktioniert es
- Alle neuen Anzeigen matchen wir kostenlos mit Deinen Suchparametern.
- Passende Angebote senden wir Dir in einer E-Mail pro Tag.
- Du kannst auch verschiedene Suchen anlegen und Dich jederzeit abmelden. Mehr dazu




