Objektdaten
Objektbeschreibung
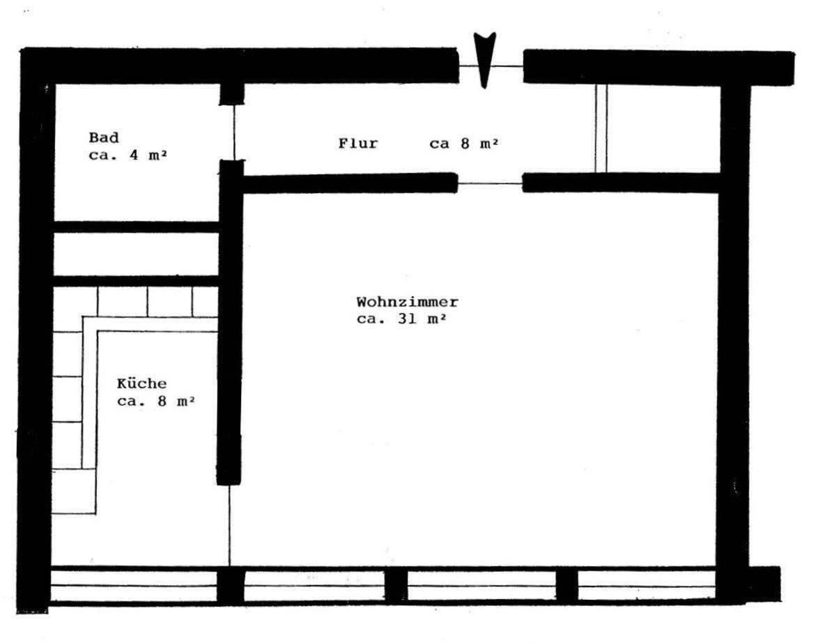
Diese attraktive Eigentumswohnung im 4. Obergeschoss eines gepflegten Wohnhochhauses überzeugt durch ihren modernen Loftcharakter, eine durchdachte Raumaufteilung sowie eine Ostausrichtung mit Blick auf die Elbe.Der offen gestaltete Wohn- und Schlafbereich bildet das Zentrum der Wohnung und wird durch große Fensterflächen mit angenehmem Tageslicht versorgt. Die separate Küche bietet ebenso einen attraktiven Elbblick und fügt sich funktional in das Raumkonzept ein.Zusätzlichen Komfort bieten ein Kellerraum sowie ein Tiefgaragenstellplatz, der sicheres und bequemes Parken gewährleistet.Ein besonderes Highlight ist der exklusive Spa-Bereich zur Gemeinschaftsnutzung, der den Wohnkomfort deutlich aufwertet. Den Bewohnern stehen ein Swimmingpool, eine Sauna sowie ein Sportraum zur Verfügung - ideal für Entspannung und sportlichen Ausgleich.Das Objekt ist derzeit vermietet. Weitere Informationen zum Mietverhältnis stellen wir Ihnen gerne auf Anfrage zur Verfügung.. Das Hausgeld beträgt 339,54 € / Monat, die Zuführung zur Instandhaltungsrücklage: € / MonatDie Übergabe erfolgt nach Vereinbarung.Hinweis: Aufgrund der derzeitigen Vermietung und aus Diskretionsgründen handelt es sich bei den Aufnahmen in diesem Exposé um Einrichtungs- und Gestaltungsbeispiele, die Rahmen des Virtual Home Staging erstellt wurden.Ähnliche Angebote
So funktioniert es
- Alle neuen Anzeigen matchen wir kostenlos mit Deinen Suchparametern.
- Passende Angebote senden wir Dir in einer E-Mail pro Tag.
- Du kannst auch verschiedene Suchen anlegen und Dich jederzeit abmelden. Mehr dazu




