Objektdaten
Objektbeschreibung
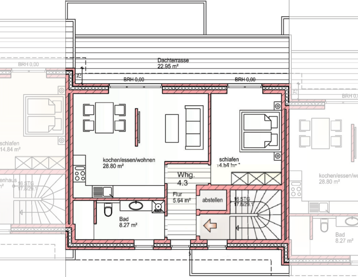
In dieser neuwertigen Dachgeschosswohnung aus dem Jahr 2025 erwarten Sie 66 m² Wohnfläche in ansprechender Aufteilung. Die Wohnung befindet sich im 3. Obergeschoss eines Hauses mit drei Etagen und steht ab dem 01.07.2026 zur Verfügung. Aufgeteilt in zwei Zimmer bietet die Wohnung ein Schlafzimmer, ein Badezimmer mit Dusche und Fenster sowie einen Abstellraum. Die zentral beheizte Wohnung wird durch eine Luft-/Wasser-Wärmepumpe energieeffizient versorgt und ist der Energieeffizienzklasse A+ zugeordnet. Eine Einbauküche ist vorhanden, die Böden sind mit Fliesen und Kunststoff ausgelegt. Der Balkon lädt zum Entspannen ein. Zur Wohnung gehört ein Außen-Stellplatz, der für 25 EUR im Monat angemietet werden kann.Ähnliche Angebote
So funktioniert es
- Alle neuen Anzeigen matchen wir kostenlos mit Deinen Suchparametern.
- Passende Angebote senden wir Dir in einer E-Mail pro Tag.
- Du kannst auch verschiedene Suchen anlegen und Dich jederzeit abmelden. Mehr dazu





