Objektdaten
Objektbeschreibung
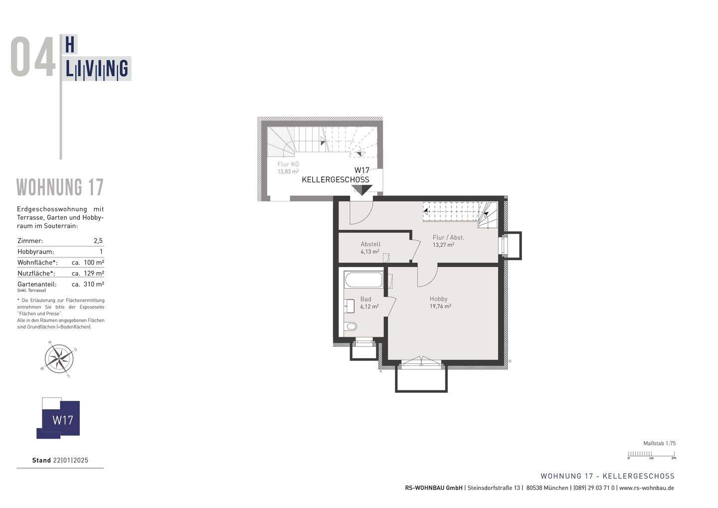
Diese Wohnung besticht vor allem durch seine besonders durchdachte Aufteilung im Erdgeschoss zzgl. den taghellen Souterrainbereich mit zusätzlichem Abstellraum und einem weiteren Badezimmer. Einen wahren Rückzugsort bietet zudem der schöne und großzügige Gartenanteil.Objekthighlights:- energiesparende und wirtschaftliche Effizienzhäuser 40 mit Energieeffizienzklasse A+, QNG- hochwärmedämmende Massiv-Ziegelbauweise- umweltschonende und modernste Wärmepumpentechnologie- Fußbodenheizung mit Einzelraumsteuerung in allen Räumen- Treppenlauf mit ausgewähltem Granitbelag und Edelstahlhandlauf- hochbeständige und pflegeleichte Kunststofffenster mit hochwertiger Alu-Vorsatzschale, 3-fach - Wärmeschutzverglasung und Sicherheitsfenstern im EG- elektrische Rollläden an allen stehenden Fenstern- hochwertige Elektroausstattung mit CAT7 Verkabelung- Videosprechanlage- elegante Porzellan-Serie und formschöne Armaturen von namhaften Herstellern für die Bäder- komfortable, bodengleiche Duschen (sofern technisch realisierbar, gemäß Plan)- elegante Bodenbeläge (z.B. Eichenparkett oder Parkett nach eigener Wahl* in allen Wohn- und Schlafräumen)- exklusive großformatige Fliesen, frei wählbar*- großzügige Tiefgarage mit komfortablen Multiparksystemen mit hohem Einstellkomfort und Vorbereitung von Ladeinfrastruktur für Elektro-Mobilität - Sonderwünsche nach Absprache möglich* im Rahmen der in der Baubeschreibung festgelegten Richtpreise pro m². Die vollständige Baubeschreibung erhalten Sie gerne auf Anfrage.Ähnliche Angebote
So funktioniert es
- Alle neuen Anzeigen matchen wir kostenlos mit Deinen Suchparametern.
- Passende Angebote senden wir Dir in einer E-Mail pro Tag.
- Du kannst auch verschiedene Suchen anlegen und Dich jederzeit abmelden. Mehr dazu




