Warmmiete 1.140 €
Zimmer 3
Größe 81 m²
88441 Mittelbiberach
Objektdaten
Veröffentlicht am: 8. März 2026
Frei ab: 1. Mai 2026
Kaltmiete 880 €
Energieausweis: Liegt bei der Besichtigung vor
Danke! Bitte bestätige Deine E-Mail-Adresse – wir haben Dir soeben eine Mail geschickt.
Es gab ein Problem beim Absenden. Bitte versuche es erneut.
Bitte bestätige Deine E-Mail-Adresse, um Updates zu erhalten.
Objektbeschreibung
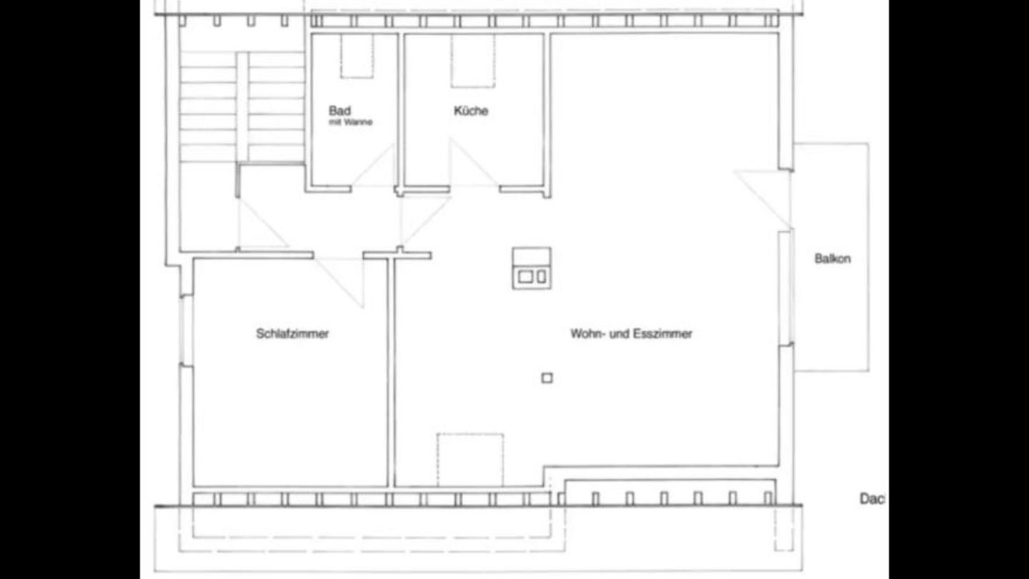
Diese attraktive 3-Zimmer-Wohnung befindet sich in einer gepflegten Wohnanlage im beliebten Mittelbiberach, im zweiten Obergeschoss eines soliden Mehrfamilienhauses. Mit einer Wohnfläche von 81,49 m² bietet sie viel Platz und eine Vielzahl an Annehmlichkeiten. Die Immobilie wurde im Jahr 1998 erbaut und erstrahlt in einem hervorragenden Zustand, was einen einladenden Gesamteindruck hinterlässt.
Das Objekt verfügt über zwei sonnige Balkone mit Blick nach Süden, die ideal sind, um entspannte Stunden im Freien zu verbringen. Komfortabel ist auch das großzügige Wohn- und Esszimmer, das direkten Zugang zum Balkon gewährt. Eine stilvolle Einbauküche sowie ein Badezimmer mit Fenster und Badewanne runden das Angebot ab. Die beiden Schlafzimmer, darunter ein Kinderzimmer, bieten ausreichend Raum für persönliche Rückzugsorte. Praktische Details wie ein Gäste-WC und ein Kellerraum sind weitere Pluspunkte.
Zusätzlich stehen Ihnen ein Stellplatz für Ihr Fahrzeug sowie eine Garage zur Verfügung, was in dieser Lage besonders vorteilhaft ist. Haustiere sind in dieser schönen Wohnung leider nicht gestattet. Hier gelingt es, durch den engagierten Hausmeisterdiensten und die gepflegte Außenanlage, eine harmonische Wohnatmosphäre zu schaffen.
So funktioniert es
- Alle neuen Anzeigen matchen wir kostenlos mit Deinen Suchparametern.
- Passende Angebote senden wir Dir in einer E-Mail pro Tag.
- Du kannst auch verschiedene Suchen anlegen und Dich jederzeit abmelden. Mehr dazu
Wir haben soeben eine E-Mail mit Deinem Suchauftrag an Dich geschickt. – Klicke in dieser Mail auf den Bestätigungslink und schon geht's los. Prüfe ggf. auch Deinen Spamordner.
Es gab ein Problem beim Absenden Deiner E-Mail-Adresse. Bitte versuche es erneut.
WARNUNG: Bitte bestätige Deine E-Mail-Adresse, um regelmäßige Updates zu erhalten.