Kaufpreis 1.099.900 €
Zimmer 5
Größe 127 m²
82054 Sauerlach
Objektdaten
Veröffentlicht am: 9. März 2026
Baujahr: 2023
Energieausweis: Liegt bei der Besichtigung vor
Danke! Bitte bestätige Deine E-Mail-Adresse – wir haben Dir soeben eine Mail geschickt.
Es gab ein Problem beim Absenden. Bitte versuche es erneut.
Bitte bestätige Deine E-Mail-Adresse, um Updates zu erhalten.
Objektbeschreibung
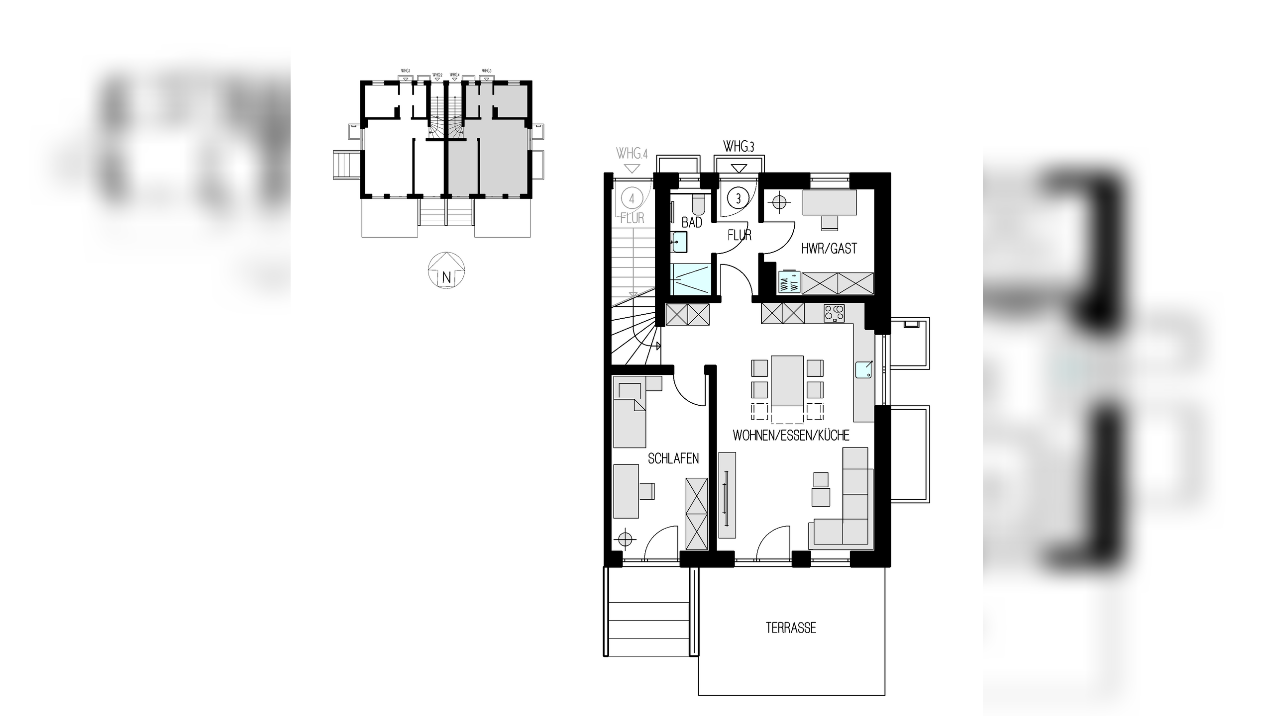
In der oberbayerischen Gemeinde Sauerlach, direkt vor den Toren der Landeshauptstadt München, erstellen wir für Sie in der Ringbergstraße 18 und 18a in Süd-Ausrichtung 2 Zweifamilienhäuser mit insgesamt 4 Maisonette-Wohnungen, ruhig gelegen, mit hochwertiger Grundausstattung, in solider, massiver Ziegelbauweise. Die moderne Ausstattung und die ausschließliche Verwendung hochwertiger Baumaterialien gibt Ihnen die Sicherheit, dass Sie eine Immobilie mit bester Wertbeständigkeit besitzen werden.Bei unseren Wohnungen setzen wir auf ein durchdachtes energetisches Konzept mit dem Sie Energie sparen und gleichzeitig zusätzliche Lebensqualität genießen können. Die Wohnungen sind von uns hell und lichtdurchflutet konzipiert und bieten viel Platz für Ihre Familie. Individuelle Wünsche sind je nach Baufortschritt möglich. Zögern Sie nicht lange, wenn Sie in einem maßgeschneiderten Zuhause leben möchten – wir erfüllen Ihre Wünsche gerne.Das Projekt wird als klimafreundliches Wohngebäude mit QNG-Zertifizierung erstellt. Dadurch können Sie sich bis zu 270.000 € zinsgünstige KfW-Förderkredite sichern. Das erleichtert Ihnen bei dem aktuellen Zinsniveau den Traum von Ihren eigenen vier Wänden zu realisieren. Und auch als Kapitalanlage für Vermieter sind unsere Wohnungen sehr interessant. Neben einer wartungsarmen und einfach aufgebauten Haustechnik sowie finanziellen Rückflüssen aus der PV-Anlage ist auch zusätzlich eine degressive Abschreibung i.H.v. 5,00% p.a. möglich. Das fördert eine spürbar schnellere Refinanzierung Ihrer getätigten Investition.Wohnung 3 (EG/UG)5-Zimmer-Maisonette-Wohnungmit Terrasse und ca. 200 m² GartenWohnfläche ca. 127,60 m²Verkaufspreis 1.099.900 €(zzgl. 37.500 € für 1 Garagen- und 12.500 € für 1 Außenstellplatz)Wohnung 1, 2 und 4 sind bereits verkauft.
So funktioniert es
- Alle neuen Anzeigen matchen wir kostenlos mit Deinen Suchparametern.
- Passende Angebote senden wir Dir in einer E-Mail pro Tag.
- Du kannst auch verschiedene Suchen anlegen und Dich jederzeit abmelden. Mehr dazu
Wir haben soeben eine E-Mail mit Deinem Suchauftrag an Dich geschickt. – Klicke in dieser Mail auf den Bestätigungslink und schon geht's los. Prüfe ggf. auch Deinen Spamordner.
Es gab ein Problem beim Absenden Deiner E-Mail-Adresse. Bitte versuche es erneut.
WARNUNG: Bitte bestätige Deine E-Mail-Adresse, um regelmäßige Updates zu erhalten.