Objektdaten
Objektbeschreibung
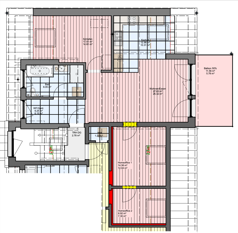
Diese 4 Zimmer Wohnung auf zwei Ebenen ist eine familienfreundliche Seltenheit, das in dieser Form am Markt kaum zu finden ist. Mit ca. 101,42 m² Wohnfläche, lichtdurchflutetem Wohnbereich und einem sonnigen Südwest Balkon vereint sie eine Architektur, die heute nur noch selten realisiert wird. Die besondere Grundrissgestaltung schafft ein Wohngefühl, das sich deutlich von klassischen Standardwohnungen abhebt. Für Familien, die etwas wirklich Einmaliges suchen, ist diese Wohnung eine Gelegenheit, die so schnell nicht wiederkommt. Auf einem wunderschön gelegenen Grundstück an der Paar bauen wir für Sie zwei Mehrfamilienhäuser mit insgesamt 14 exklusiven Eigentumswohnungen und Tiefgarage. In dieser naturnahen Idylle können Sie Ihren Traum von Wohlfühlen und Wohnen erlebbar machen. Es erwartet Sie eine anspruchsvolle Architektur in edlem Design, sehr ansprechende Grundrisse und viele andere Annehmlichkeiten. Jede Wohnung für sich bietet ihren ganz eigenen Reiz. Sei es die Raumaufteilung, die Nähe zum beruhigenden Flüsschen Paar oder die Balkone und Terrassen, die einen wunderbaren Rückzugsort bieten. Es stehen Ihnen, je nach Ihren Anforderungen und Bedürfnissen, unterschiedliche Grundrisse mit den Größen von ca. 42 qm bis ca. 165 qm zur Verfügung. Sie erreichen alle Wohnungen barrierefrei von der Tiefgarage bis in das Dachgeschoss. Balkon, Keller, Fahrstuhl, Barrierefrei, Parkett, Laminat, Teppichboden, Fliesen Bemerkungen: Wir bauen mit Herz, Hand und Verstand - als wäre es unser eigenes Zuhause. Unser Motto ist: "Aus der Region, für die Region". Die Ausstattung Ihrer Wohnung erfolgt nach Ihren Wünschen und Vorstellungen auf Basis der Baubeschreibung.Das Gebäude: -> Tiefgarage und Keller in wasserundurchlässiger Ausführung -> Außenwände in hochgedämmten 36,5 cm starken Ziegeln -> Außenwandflächen mit qualitätshohem dreilagigen Maschinenputz -> Hochwertige Spenglerarbeiten -> Qualitätsmarkenfenster in Kunststoff mit 3-Scheiben-Isolierverglasung -> Sämtliche Wohnungseingangstüren in Schallschutzklasse III -> Sicherheitshaustüre, Videosprechanlage -> Luft-Wasser-Wärmepumpe -> Elektrische Rollläden -> KfW 55 Effizienzhaus Die Innenausstattung: -> hochwertige Innentüren -> Qualitätsfliesen in Bad und WC -> hochwertiges Feinsteinzeug im Treppenhaus -> Bodenbeläge in Wohn- und Schlafbereich in Parkett, Vinyl oder Laminat -> gehobene Sanitäreinrichtung inkl. beleuchtetem Kosmetikspiegel Sonderwünsche sind nach Absprache möglich. Eine eingehende Beratung durch unser Team wird stets gewährleistet.Energieträger: Luft-/Wasserwärme
Via Claudia Wohnbau GmbH
Lechring 2
86836 Untermeitingen
Tel. 08232-9955959
Geschäftsführer Wilhelm Mögele
Amtsgericht Augsburg HRB 37356
Steuernummer 102/141/40476
Makleranfragen nicht erwünscht. Nach § 7 UWG sind unaufgeforderte Kontaktaufnahmen durch Makler ohne ausdrückliche Einwilligung des Empfängers verboten!
ohne-makler (OM) ist weder Anbieter noch Vermittler der Immobilie. OM betreibt eine Plattform für Immobilieneigentümer, die unter anderem die gleichzeitige Veröffentlichung einzelner Inserate auf mehreren Immobilienportalen ermöglicht. Die Inhalte dieser Inserate werden ausschließlich von Dritten verantwortet. Für die Richtigkeit, Vollständigkeit oder Rechtmäßigkeit der Angaben übernimmt OM keine Haftung. Hinweise auf mögliche Rechtsverstöße können jederzeit gemeldet werden und werden nach Prüfung umgehend bearbeitet.
So funktioniert es
- Alle neuen Anzeigen matchen wir kostenlos mit Deinen Suchparametern.
- Passende Angebote senden wir Dir in einer E-Mail pro Tag.
- Du kannst auch verschiedene Suchen anlegen und Dich jederzeit abmelden. Mehr dazu




