Kaufpreis 4.800.000 €
13187 Berlin
Objektdaten
Veröffentlicht am: 13. März 2026
Energieausweis: Liegt bei der Besichtigung vor
Danke! Bitte bestätige Deine E-Mail-Adresse – wir haben Dir soeben eine Mail geschickt.
Es gab ein Problem beim Absenden. Bitte versuche es erneut.
Bitte bestätige Deine E-Mail-Adresse, um Updates zu erhalten.
Objektbeschreibung
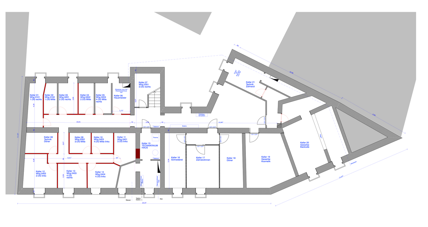
Provisionsfreier Verkauf einer Kapitalanlage in Berlin: Vollvermietetes Wohn- und Geschäftshaus mit attraktiver Rendite und erheblichem SteuervorteilSolide Mieteinnahmen, steuerliche Abschreibung und langfristiger Vermögensaufbau in einer der gefragtesten Immobilienlagen Deutschlands.?Dieses vollvermietete Wohn- und Geschäftshaus in Berlin bietet Investoren die seltene Kombination aus laufenden Erträgen, steuerlichen Vorteilen und nachhaltiger Substanz. Mit einem Kaufpreis von 4.800.000 €, einer vermietbaren Fläche von ca. 1.346 m² sowie jährlichen Mieteinnahmen von 242.401,92 € eröffnet sich hier eine Kapitalanlage, die nicht nur heute überzeugt, sondern auch langfristig starke Perspektiven bietet.Bereits die vorhandenen Mieteinnahmen sorgen für einen attraktiven, sofortigen Cashflow. Gleichzeitig profitiert der Käufer von den steuerlichen Vorteilen eines Altbaus: Da das Gebäude ursprünglich aus dem Jahr 1900 stammt, kann für den Gebäudeanteil grundsätzlich eine lineare Abschreibung von 2,5 % pro Jahr genutzt werden. Gerade für Kapitalanleger ist dies ein entscheidender Hebel, um die steuerliche Belastung zu reduzieren und die Nachsteuerrendite deutlich zu verbessern.In einer attraktiven Modellrechnung kann sich daraus - je nach Kaufpreisaufteilung und persönlichem Steuersatz - eine jährliche Abschreibung von bis zu rund 109.650 € ergeben. Bei einem hohen persönlichen Steuersatz entspricht das einem möglichen steuerlichen Vorteil von bis zu ca. 46.000 € pro Jahr. So entsteht ein Investment, das nicht nur durch Einnahmen überzeugt, sondern zusätzlich durch einen erheblichen steuerlichen Entlastungseffekt.Die Immobilie vereint damit mehrere Renditetreiber in einem Objekt: laufende Mieteinnahmen, steuerliche Optimierung, reale Substanz und Berliner Standortqualität. Für Investoren, die auf Sicherheit, Werthaltigkeit und planbare Erträge setzen, entsteht hier ein Investment mit klarer wirtschaftlicher Logik.Ihre Vorteile als Investor auf einen BlickKaufpreis: 4.800.000 €Jahresmieteinnahmen: 242.401,92 €Faktor: 19,8Vermietbare Fläche: ca. 1.346 m²Bruttomietrendite: ca. 5,04 %Baujahr: 1900Mögliche lineare AfA: 2,5 % p.a. auf den GebäudeanteilMögliche Abschreibung: bis ca. 109.650 € jährlichMöglicher steuerlicher Vorteil: bis ca. 46.000 € jährlich, abhängig vom persönlichen SteuersatzWarum dieses Investment überzeugtDieses Wohn- und Geschäftshaus richtet sich an Anleger, die mehr suchen als nur eine klassische Bestandsimmobilie. Hier erwerben Sie ein Objekt, das vom ersten Tag an Ertrag generiert und zugleich zusätzliche Potenziale über die steuerliche Struktur eröffnet.Die Flächen sind vermietet, die Einnahmen vorhanden und die Immobilie bietet damit eine solide Grundlage für einen langfristig orientierten Vermögensaufbau. Durch die Kombination aus Wohn- und Gewerbenutzung entsteht zudem eine attraktive Nutzungsstruktur, die Stabilität und Diversifikation innerhalb eines einzigen Investments vereint.Gerade in einem Markt wie Berlin gewinnt ein solches Objekt zusätzlich an Relevanz: Sachwert, Bestand, laufender Ertrag und steuerlicher Hebel treffen hier aufeinander und schaffen eine Kapitalanlage, die sowohl wirtschaftlich als auch strategisch überzeugt.Für wen ist dieses Objekt besonders interessant?Diese Immobilie eignet sich ideal für Anleger, dieihr Vermögen in eine werthaltige Bestandsimmobilie investieren möchten,auf sofortige Mieteinnahmen setzen,einen zusätzlichen steuerlichen Vorteil nutzen wollen,und ein Objekt mit langfristiger Perspektive in Berlin suchen.Dieses Wohn- und Geschäftshaus in Berlin ist weit mehr als nur eine Immobilie - es ist ein durchdachtes Investment mit Ertrag, Substanz und steuerlichem Mehrwert. Die Kombination aus 242.401,92€ Jahresmiete, einer attraktiven Bruttorendite, möglicher AfA von bis zu rund 109.650 € jährlich und einem potenziellen Steuervorteil von bis zu ca. 46.000 € pro Jahr macht dieses Objekt zu einer äußerst interessanten Kapitalanlage für anspruchsvolle Investoren.Wer auf der Suche nach einem starken Bestandsinvestment mit laufendem Cashflow und überzeugender wirtschaftlicher Grundlage ist, findet hier eine seltene Gelegenheit.Solides Investment - Kernsaniertes Wohn- und Geschäftshaus im Herzen von PankowDas um 1900 erbaute Wohn- und Geschäftshaus, bestehend aus einem Vorderhaus, umfasst auf einer vermietbaren Fläche von ca. 1346 m² 12 Wohn- und 5 Gewerbeeinheiten. Alle Einheiten sind derzeit voll vermietet. Die Praxisfläche im 1. Obergeschoss ist mit einer festen Laufzeit bis 31.12.2026, die vier Gewerbeeinheiten im Erdgeschoss unbefristet, mit gesetzlicher Kündigungsfrist, vermietet. Neben einem beliebten japanischen Restaurant sind ein Änderungsatelier sowie ein Bistro weitere Gewerbemieter. Teilweise bestehen Mietverträge mit Laufzeiten bis ins Jahr 2033, was zusätzliche Planungssicherheit bietet.In den Jahren 2014/2015 wurde das Objekt komplett kernsaniert, die Wohnung- und Gewerbegrundrisse neu geplant, das Dachgeschoss ausgebaut und die Wohnungen zum Hinterhof erhielten neue, großzügige Balkone. Das Objekt ist voll unterkellert und wird über eine Gaszentralheizung mit zentraler Warmwasserversorgung beheizt.Gewerbeeinheiten optimal für Laufkundschaft des Rathaus-Centers sowie der Geschäftsstraße "Breite Straße"Durchschnittsmiete Gewerbe: 14,84 €/m²Durchschnittsmiete Wohnen: 11 €/m²Dachgeschossausbau 2015voll vermietetvoll unterkellertkein Aufzug2014/2015 kernsaniert (Haus und Wohnungen):Wärmedämmung, neue Heizungsanlageneuer Dachstuhl, neue Wohnungsgrundrisseneue Fenster, Balkone zum HinterhofModernisierung der Sanitär-, Heizungs- und ElektroinstallationErneuerung der Stränge und LeitungenInstandsetzung bzw. Erneuerung der Türen, Bodenbeläge
So funktioniert es
- Alle neuen Anzeigen matchen wir kostenlos mit Deinen Suchparametern.
- Passende Angebote senden wir Dir in einer E-Mail pro Tag.
- Du kannst auch verschiedene Suchen anlegen und Dich jederzeit abmelden. Mehr dazu
Wir haben soeben eine E-Mail mit Deinem Suchauftrag an Dich geschickt. – Klicke in dieser Mail auf den Bestätigungslink und schon geht's los. Prüfe ggf. auch Deinen Spamordner.
Es gab ein Problem beim Absenden Deiner E-Mail-Adresse. Bitte versuche es erneut.
WARNUNG: Bitte bestätige Deine E-Mail-Adresse, um regelmäßige Updates zu erhalten.